| Autor |
Heizungsalarm via Handy Suche nach: handy (3187) |
|
|
|
|
BID = 402152
madmax27 Gerade angekommen
Beiträge: 12
|
|
Hallo
Ich möchte folgendes Projekt realisieren und benötige Hilfe da ich elektronisch nicht die hellste Leute bin.
Eine Ölheizung soll mich mit angeschlossenem Handy anrufen wenn eine Störung auftritt.
Jede Ölheizung hat einen so genannten Feuerungsautomaten der die Heizung steuert.
Tritt eine Störung auf, so schaltet sich die Heizung ab und am Feuerungsautomaten leuchtet eine Lampe, welche in einen Taster integriert ist an dem die Störung quittiert wird.
Wenn man von den Kontakten der Lampe zu einem Relais geht, welches an die Tastatur angelötet wird und eine Kurzwahlfunktion auslöst so müsste es bei mir doch klingeln.
Die Heizung wird mit 220V betrieben und die Lampe hat schätzungsweise 5W.
Wie das beim Handy aussieht hab ich keine Ahnung, aber vielleicht ist das hier ja schon bekannt.
Ist das so realisierbar?
Benötigt man genauere Daten um ein geeignetes Relais zu finden?
Gibt es ein passendes Relais bei Conrad?
thx |
|
BID = 402166
Jornbyte Moderator
      
Beiträge: 7395
|
|
Da gibt es fertige Störmelder, z.B. Xcome oder Lobix.
_________________
mfg Jornbyte
Es handelt sich bei dem Tipp nicht um eine Rechtsverbindliche Auskunft und
wer Tippfehler findet, kann sie behalten. |
|
BID = 402167
bastler16 Schreibmaschine
     Beiträge: 2140 Wohnort: Frankreich
|
Hallo madmax27
sowas ist realisierbar
Vor den Taster mit integrierter Lampe (LED?) kann man einen LDR oder Fototransistor kleben, diese reagieren auf Licht. Direkt am Handy rumlöten ist keine gute Idee und zudem sehr fummelig (SMD). Es gibt jedoch Interfaces für Handys oder direkte Schaltungen die nur noch eine SIM-Karte brauchen. Guck dich mal bei Reichelt oder Conrad Elektronik um.
Desweiteren kannst du mal die Forumsuche benutzen (Lupe oben links), ähnliche Themen gab es bestimmt schonmal.
Hoffe das hilft dir weiter
EDIT: Guck mal da http://shop.elv.de/output/controlle.....=9191 Ein passendes Handy könnte es für wenig Geld bei Ebay geben.
EDIT2: Das könnte auch interessant sein https://forum.electronicwerkstatt.d.....rum=6
[ Diese Nachricht wurde geändert von: bastler16 am 26 Jan 2007 21:32 ]
|
BID = 402179
madmax27 Gerade angekommen
Beiträge: 12
|
Hallo
Wegen den Störmeldern in diese Richtung hab ich noch nicht gesucht.
Die Forumssuche hab ich schon gemartert.
Einen ähnlichen Tread hab ich gefunden wo eine Alarmanlage einen Anruf tätigen soll.
Ist jedoch ein wenig zu verkompliziert worden denke ich, da der Treadersteller der Meinung war das die Kurzwahltaste nur 5 sec. angesteuert werden soll.
Das ist meiner Meinung nach egal, da man ja bei normalem Kurzruf auch endlos auf der Taste bleiben kann.
Das anlöten von Kontakten an der Tastatur wurde jedoch als nicht schwierig beschrieben.
Die Fotosensor Schaltungen sind mir bekannt.
So eine benötige ich auch in kürze um meine Standheizung zu aktivieren.
Im Falle der Heizung geht es jedoch in eine andere Richtung.
Nicht das Handy soll eine Schaltung aktivieren, sondern eine Schaltung (in diesem Fall eine bereits vorhandene Schaltung durch den Feuerungsautomaten) soll das Handy aktivieren und die Kurzwahl auslösen.
Lieg ich da falsch?
lG
Edit: Die SMS Interfaces gefallen mir wegen der anfallenden Kosten für die SMS nicht so gut.
Ich möchte eine Heizungsanlage überwachen die mit Planzenöl betrieben wird und da kann es schon zu mehreren Störungen kommen bis das störungsfrei klappt.
[ Diese Nachricht wurde geändert von: madmax27 am 26 Jan 2007 21:58 ]
|
BID = 402253
Kleinspannung Urgestein
     
Beiträge: 13389 Wohnort: Tal der Ahnungslosen
|
Zitat :
madmax27 hat am 26 Jan 2007 21:49 geschrieben :
|
Die SMS Interfaces gefallen mir wegen der anfallenden Kosten für die SMS nicht so gut
|
na ja,aber ich denke deine Heizung schaltet sich im Störfall ab und sendet da ja nur eine SMS pro selbigem und dann mußt sowieso losrennen...Solange die Technik nicht zig mal am Tag versagt dürften die Kosten sich doch in Grenzen halten...Und dann versteh ich den tieferen Sinn noch nicht ganz.Wenn du in dem Objekt mit der Heizung bist,kannste das Signal der Störleuchte doch einfacher übertragen,und wenn du nicht dort bist kannste doch am Ende sowieso nicht alle naselang alles fallenlassen und da hinrennen,oder hab ich da was nicht verstanden?
|
BID = 402323
madmax27 Gerade angekommen
Beiträge: 12
|
Da spielen einige Faktoren zusammen warum mir mein Lösungsvorschlag lieber wäre.
Die Symphatie zu SMS ist bei mir nicht gerade ausgeprägt.
Ich selbst verschicke max 10 SMS im Jahr und das zu Silvester weil da eh kein durchkommen ansonsten ist.
Ich übersehe auch leicht ankommende SMS und bei meinem Handy ist die Molbilbox auch abgeschaltet.
Theoretisch würde mein Handy also unbegrenzt läuten wenn der Anrufer nicht beendet oder ich wegdrücke.
Ich habe meistens die möglichkeit auch an Arbeitstagen nach der Heizung sehen zu können, aber eine Abschätzung wie viele SMS und Kosten anfallen bis die Heizung Störungsfrei läuft ist schwer möglich.
Weiters wären die Anschaffungskosten für meinen Lösungsansatz weit billiger, was bei einem Low Budget Pojekt auch ins Gewicht fällt.
Einige alte Handys sind schnell aufgetrieben die keinen Cent kosten.
Da kann ich einiges Schrotten falls das anlöten von Kontakten nicht aufs erste mal funktioniert.
Grundsätzlich würde ich gerne wissen ob mein Lösungsansatz funktinieren müsste, und wenn ja welches Relais ich dann benötigen würde oder ob ihr noch Daten benötigt um ein geeignetes Relais zu fiden.
Den Feuerungsautomaten hab ich jetzt mal aus dem Gehäuse genommen.
Es ist eine LED welche direkt auf der Platine sitzt.
Schaltplan für den Feuerungsautomaten hab ich leider keinen gefunden.
Daten am Feuerungsautomaten:
220-240V~
50-60Hz
3VA
|
BID = 402329
perl Ehrenmitglied
       
Beiträge: 11110,1 Wohnort: Rheinbach
|
Zitat :
| | und am Feuerungsautomaten leuchtet eine Lampe, |
Nicht bei Stromausfall!
_________________
Haftungsausschluß:
Bei obigem Beitrag handelt es sich um meine private Meinung.
Rechtsansprüche dürfen aus deren Anwendung nicht abgeleitet werden.
Besonders VDE0100; VDE0550/0551; VDE0700; VDE0711; VDE0860 beachten !
|
BID = 402337
madmax27 Gerade angekommen
Beiträge: 12
|
Aber natürlich leuchtet die dann immer noch!
Muss nur den Hamster im Laufrad mit angeschlossenem Generator nur etwas die Peitsche geben damit der die 15oo U/min konstant hält.
|
BID = 402370
Der Sascha Stammposter
   
Beiträge: 464
|
Hi,
Wenn deine Heizung in der Störungszustand versetzt wird, sind das dann so so kleine simple Fehler die du immer nur quittieren musst oder sind das schon größere Sachen?
Denn wenn du nur immer nach Hause fahren musst um die Heizung schnell zu reamieren, würde ich eher diesen Leuchten Kontakt abgreifen und mit Hilfe eines Relais die Heizung Automatisch quittieren.
Oder du macht das ganze richtig anständig über eine Kleinsteuerung und eine Telefonanlage. Dann könntest du dich anrufen lassen und könntest ebenfalls mit Hilfe der Telefonanlage den Fehler quittieren.
Ein Bekannter hatte mal sein Garagentor an eine Telefonanlage gehängt, konnte dann anrufen und das Tor wurde geöffnet. Bischen sinnlos, aber das selbe Prinzip könnte bei dir auch funktionieren.
_________________
gruß Sascha
1. Freischalten
2. Gegen Wiedereinschalten sichern
3. Spannungsfreiheit allpolig feststellen
4. Erden und kurzschließen
5. Benachbarte, unter Spannung stehende Teile abdecken oder abschranken
|
BID = 402391
perl Ehrenmitglied
       
Beiträge: 11110,1 Wohnort: Rheinbach
|
Zitat :
| | Muss nur den Hamster im Laufrad mit angeschlossenem Generator nur etwas die Peitsche geben |
Dazu mußt du aber daneben stehen, und dann brauchst du solch einen Klapperatismus ohnehin nicht.
Auch nicht, wenn es dir egal ist, ob bei eimem Stromausfall im Winter die Heizung einfriert.
Wozu dann also diese Spielerei ?
_________________
Haftungsausschluß:
Bei obigem Beitrag handelt es sich um meine private Meinung.
Rechtsansprüche dürfen aus deren Anwendung nicht abgeleitet werden.
Besonders VDE0100; VDE0550/0551; VDE0700; VDE0711; VDE0860 beachten !
|
BID = 402406
Otiffany Urgestein
     
Beiträge: 13782 Wohnort: 37081 Göttingen
|
Und Du bist sicher, daß die Störungslampe eine LED ist und nicht eine Glimmlampe wie bei meiner Heizung?
gruß
Peter
|
BID = 402468
high_speed Schreibmaschine
    
Beiträge: 2073
|
Einen Feuerungsautomaten aufmachen und dann noch dran herum
basteln. Das ist ein Sicherheitsrelevantes Bauteil!
An dem Brenner-Stecker ist auch ein Ausgang für eine
Störmeldung. Um jetzt zwei Meldekontakte (Spannungsausfall,
Störung) zu bekommen brauchst man zwei Relais.
@Otiffany
In den neuen Feuerungsautomaten sind schon µC verbaut. Schau
dir zum Beispiel mal den LOM14 von SI*EMENS an.
MfG
Holger
_________________
George Orwell 1984 ist nichts gegen heute.
Der Überwachungsstaat ist schon da!
Leider lernen die Menschen nicht aus der Geschichte,
ansonsten würde sie sich nicht andauernd wiederholen.
|
BID = 402484
madmax27 Gerade angekommen
Beiträge: 12
|
Eine Quittierung über Anruf kommt nicht in Frage.
Wenn die Heizung auf Störung geht hat das auch seine Ursache.
Entweder muss die Ursache dann auch behoben werden, oder ich wechsle dann auf den Brenner der mit Heizöl betrieben wird.
Ich möchte einfach nur einen Anruf bekommen wenn die Heizung auf Störung geht.
Ein Anruf bei Stromausfall ist ebenfalls nicht notwendig, dass wurde hier nur von perl mit seiner scherzhaften Bemerkung ins Spiel gebracht das die Lampe bei Stromausfall nicht leuchtet.
|
BID = 402546
madmax27 Gerade angekommen
Beiträge: 12
|
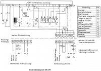
Nach dem Bild von high_speed zu urteilen müsste die Störung also auch vom Eurostecker Pol S3 abzunehmen sein, was die Sache natürlich noch erleichtert.
Also mit Pol S3 und N an das Relais nehm ich mal an.
Gibt es niemanden der mir ein Relais für diesen Zweck empfehlen kann?
|
BID = 403669
madmax27 Gerade angekommen
Beiträge: 12
|
Heute hab ich mein Projekt verwirklicht.
Und zwar genau so wie ich mir das vorgestellt habe.
Es funktioniert wunderbar.
Hat alles gleich auf das erste mal geklappt.
Gekostet hat das ganze 10,- € für ein altes Handy mit SIM, und 7,20 € für das Relais, und nicht 41,- € für das SMS-Universal-Interface SUI 4, 5,- € für das Datenkabel und sagen wir halt auch 10,- € für ein Siemens Handy.
Ich hätte mir hier etwas mehr Untersützung gewünscht.
Vor allem bei der Suche und Auswahl des Relais.
[ Diese Nachricht wurde geändert von: madmax27 am 1 Feb 2007 22:51 ]
|