Schaltungsplan "Ausschaltung mit zwei lampen und einer steckdose"

Im Unterforum Elektroinstallation - Beschreibung: Alles über Installation
Achtung immer VDE beachten !!

Elektronik Forum Nicht eingeloggt       Einloggen       Registrieren




[Registrieren]      --     [FAQ]      --     [ Einen Link auf Ihrer Homepage zum Forum]      --     [ Themen kostenlos per RSS in ihre Homepage einbauen]      --     [Einloggen]

Suchen


Serverzeit: 23 12 2025  18:46:09      TV   VCR Aufnahme   TFT   CRT-Monitor   Netzteile   LED-FAQ   Oszilloskop-Schirmbilder            


Elektronik- und Elektroforum Forum Index   >>   Elektroinstallation        Elektroinstallation : Alles über Installation
Achtung immer VDE beachten !!

Gehe zu Seite ( 1 | 2 | 3 Nächste Seite )      


Autor
Schaltungsplan "Ausschaltung mit zwei lampen und einer steckdose"

Problem gelöst    







BID = 587000

Frings18

Gerade angekommen


Beiträge: 12
Wohnort: Stuttgart
 

  


Hallo leute,

und zwar hab ich eine frage ich muss in der schule eine planung machen.
ich wollte fragen ob einer mir dabei helfen könnte ich danke allen im vorraus

Hier die Arbeitsblätter:

Arbeitsblatt 2 muss irgendwie der schalter verändert werden weil daraus ein 2 schalter geworden also mit einen muss man die eine lampe aus machen können und mit der anderen muss man die andere lampe aus machen können
Ich hoffe ihr habt mich verstanden

<font color="#FF0000"><br><br>Hochgeladene Datei ist grösser als 300 KB . Deswegen nicht hochgeladen<br></font><font color="#FF0000"><br><br>Hochgeladene Datei ist grösser als 300 KB . Deswegen nicht hochgeladen<br></font><font color="#FF0000"><br><br>Hochgeladene Datei ist grösser als 300 KB . Deswegen nicht hochgeladen<br></font>






[ Diese Nachricht wurde geändert von: Frings18 am  9 Feb 2009 22:18 ]

BID = 587002

Mr.Ed

Moderator



Beiträge: 36326
Wohnort: Recklinghausen

 

  


Zitat :
Ich hoffe ihr habt mich verstanden

Nein, aber das gelegentliche Einfügen von Satzzeichen und das verwenden ganzer Sätze erhöht die Verständlichkeit ungemein.

Zu den Arbeitsblättern fehlt dein Lösungsvorschlag, vorgekaute Lösungen wirst du hier nicht bekommen, wir korrigieren aber gerne deine Fehler um dir was beizubringen.
Hier macht niemand deine Hausaufgaben, schließlich sollst du was lernen.

_________________
-=MR.ED=-

Anfragen bitte ins Forum, nicht per PM, Mail ICQ o.ä. So haben alle was davon und alle können helfen. Entsprechende Anfragen werden ignoriert.
Für Schäden und Folgeschäden an Geräten und/oder Personen übernehme ich keine Haftung.
Die Sicherheits- sowie die VDE Vorschriften sind zu beachten, im Zweifelsfalle grundsätzlich einen Fachmann fragen bzw. die Arbeiten von einer Fachfirma ausführen lassen.

[ Diese Nachricht wurde geändert von: Mr.Ed am  9 Feb 2009 22:21 ]

BID = 587018

ego

Inventar



Beiträge: 3091
Wohnort: Köln

Und mit den Lösungsvorschlägen bitte auch die Aufgabenstellung posten!

BID = 587025

Kabelkasper

Stammposter



Beiträge: 497
Wohnort: Niedersachsen

Hallo Frings,

ich würde Dir gerne helfen. Leider habe ich ähnliche Probleme wie meine Vorredner. Versuche mal Deine Beschreibung zu lesen! Dann wirst Du merken, dass man sie nicht verstehen kann.

Außerdem kann ich die Bilder nicht sehen und finde Deinen Lösungvorschlag nicht. Bitte korrigieren, dann helfen wir Dir!

KK

BID = 587089

Ronnie1958

Schreibmaschine



Beiträge: 1340
Wohnort: Taunusstein


Offtopic :
ZUM GLÜCK HABE ICH NICHTS MIT AZUBIS ZU TUN!



[ Diese Nachricht wurde geändert von: sam2 am 10 Feb 2009 13:07 ]

BID = 587148

Frings18

Gerade angekommen


Beiträge: 12
Wohnort: Stuttgart




Hier die Lösungsvorschläge von mir!:





[ Diese Nachricht wurde geändert von: Frings18 am 10 Feb 2009 16:45 ]

BID = 587149

Frings18

Gerade angekommen


Beiträge: 12
Wohnort: Stuttgart

Also diesen Stomlaufplan, Installationsplan muss ich machen
hoffe ihr könnt es berichtigen danke im vorraus!

Aufgabenstellung von der schule aus ist:

Erstellen sie eine Installations- und Stromlaufplan

[ Diese Nachricht wurde geändert von: Frings18 am 10 Feb 2009 16:59 ]

BID = 587151

Mr.Ed

Moderator



Beiträge: 36326
Wohnort: Recklinghausen

Wie lautet denn nun die Aufgabenstellung?



_________________
-=MR.ED=-

Anfragen bitte ins Forum, nicht per PM, Mail ICQ o.ä. So haben alle was davon und alle können helfen. Entsprechende Anfragen werden ignoriert.
Für Schäden und Folgeschäden an Geräten und/oder Personen übernehme ich keine Haftung.
Die Sicherheits- sowie die VDE Vorschriften sind zu beachten, im Zweifelsfalle grundsätzlich einen Fachmann fragen bzw. die Arbeiten von einer Fachfirma ausführen lassen.

BID = 587175

123abc

Schreibmaschine



Beiträge: 2212
Wohnort: Hamburg

Ohne mich mit der schlechten Gramatik weiter zu befassen, vermute ich einmal das du deine Aufgabenstellung nicht erfüllt hast.

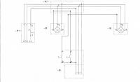
Der Schalter auf deinem ersten Bild ( img 027) ist ein Serienschalter.

Kann es sein das jede Leuchte für sich eingeschaltet werden sol.

123abc

BID = 587181

Tobi P.

Schreibmaschine



Beiträge: 2163
Wohnort: 41464 Neuss

Ich glaube ich habe es verstanden - ursprünglich ist eine Ausschaltung vorhanden die zu einer Serienschaltung erweitert werden soll.
Damit ist die Aufgabenstellung tatsächlich nicht gelöst, statt einer Serienschaltung ist das lediglich eine Ausschaltung mit zwei Brennstellen.

@Frings18: Klar können wir das berichtigen, aber wir wollen nicht. Berichtigen musst du das schon selbst, wir helfen dir nur dabei den Fehler zu finden

Also, du sollst beide Leuchten unabhängig voneinnander schalten können. Geht das denn mit dem einen Schalter in deiner Zeichnung?


Gruß Tobi

_________________
"Auch wenn einige Unwissende etwas anderes behaupten, bin ich doch der Meinung, dass man nie genug Werkzeug haben kann"

BID = 587245

Frings18

Gerade angekommen


Beiträge: 12
Wohnort: Stuttgart

@ 123abc ich wusste nicht wie ich es einfach erklären konnte.
Genau jede leuchte muss für sich selbst eingeschaltet werden.

@ Tobi Natürlich geht das mit meiner zeignung nicht, nur ich kriege das irgendwie nicht hin. Ich weiß nicht wie ich diesen schalter zeichnen könnte, anstand der Serienschalter.

Deswegen frage ich wie ich es machen kann.
Ich sage ya auch nicht ich will das ihr mir das macht nur wie ich es zeichnen könnte. Wie im 1. Arbeitsblatt ein Schalter mit 2 Wippen wie heißt das eigentlich also dieser schalter. das muss ich noch lernen

Danke im Vorraus!!

MFG
Frings18

BID = 587254

Tobi P.

Schreibmaschine



Beiträge: 2163
Wohnort: 41464 Neuss

Der Schalter mit zwei Wippen heisst Serienschalter und das ist auch das was du brauchst Mach dich mal schlau wie ein Serienschalter aufgebaut ist, dann hast du die Aufgabe so gut wie gelöst


Gruß Tobi

_________________
"Auch wenn einige Unwissende etwas anderes behaupten, bin ich doch der Meinung, dass man nie genug Werkzeug haben kann"

BID = 587255

ego

Inventar



Beiträge: 3091
Wohnort: Köln

Als erstes solltest du dir mal angewöhnen in ganzen Sätzen zu schreiben, und ein wenig auf deine Rechtschreibung zu achten.

Als nächstes ist es nicht mehr wie Höflich, auf Fragen einzugehen: Ohne die Aufgabenstellung ist das ganze Stochern im Nebel!

Sollte eine Serienschaltung gefordert sein(wovon ich ausgehe) sollte es dir kein Problem darstellen den Schalter zu verdoppeln?

BID = 587257

sam2

Urgestein



Beiträge: 35321
Wohnort: Franken (bairisch besetzte Zone)

Der Schalter mit den 2 Wippen IST für gewöhnlich ein Serienschalter (Spezialfälle wie Jalousieschalter oder Doppelwechsler kriegen wir später)!

Das ist nichts anderes, als zwei Ausschalter, die in gemeinsamem Gehäuse sitzen und eingangsseitig schon durch eine Brücke verbunden sind.
Sinn und Zweck ist einfach, platz- und kostensparend zu arbeiten. Auch sind so nachträgliche Erweiterungen bzw. Änderungen leichter möglich.

Von der reinen Funktion her könnte man auch eine Zweierkombination aus zwei Ausschaltern verwenden.
Und das ist bereits der Hinweis zum Lösungsweg!

P.S.
Weil ich nachgeschaut habe, ob Du schon begrüßt wurdest (was noch aussteht, ich daher gleich nachhole) konnten sich die zwei Kollegen "vorarbeiten"...


Also:

Hallo Frings,

erstmal noch willkommen im Forum (und hoffentlich irgendwann in der "Zunft")!

_________________
"Das Gerät habe ich vor soundsoviel Jahren bei Ihnen gekauft! Immer ist es gegangen, immer. Aber seit gestern früh geht es plötzlich nicht mehr. Sagen Sie mal, DA STIMMT DOCH WAS NICHT???"

BID = 587264

Frings18

Gerade angekommen


Beiträge: 12
Wohnort: Stuttgart

Ich danke jeden von euch die mir das erklärt haben so habe ich es verstanden. Kann es sein das, dass so richtig ist.

Danke im Vorraus, und danke an Sam2




      Nächste Seite
Gehe zu Seite ( 1 | 2 | 3 Nächste Seite )
Zurück zur Seite 1 im Unterforum          Vorheriges Thema Nächstes Thema 
Das Thema ist erledigt und geschlossen. Es kann nicht mehr geantwortet werden !



Zum Ersatzteileshop


Bezeichnungen von Produkten, Abbildungen und Logos , die in diesem Forum oder im Shop verwendet werden, sind Eigentum des entsprechenden Herstellers oder Besitzers. Diese dienen lediglich zur Identifikation!
Impressum       Datenschutz       Copyright © Baldur Brock Fernsehtechnik und Versand Ersatzteile in Heilbronn Deutschland       

gerechnet auf die letzten 30 Tage haben wir 18 Beiträge im Durchschnitt pro Tag       heute wurden bisher 4 Beiträge verfasst
© x sparkkelsputz        Besucher : 187900679   Heute : 14875    Gestern : 18168    Online : 271        23.12.2025    18:46
14 Besucher in den letzten 60 Sekunden        alle 4.29 Sekunden ein neuer Besucher ---- logout ----viewtopic ---- logout ----
xcvb ycvb
0.589546918869