Fremdspannung

Im Unterforum Elektroinstallation - Beschreibung: Alles über Installation
Achtung immer VDE beachten !!

Elektronik Forum Nicht eingeloggt       Einloggen       Registrieren




[Registrieren]      --     [FAQ]      --     [ Einen Link auf Ihrer Homepage zum Forum]      --     [ Themen kostenlos per RSS in ihre Homepage einbauen]      --     [Einloggen]

Suchen


Serverzeit: 27 12 2025  20:07:01      TV   VCR Aufnahme   TFT   CRT-Monitor   Netzteile   LED-FAQ   Oszilloskop-Schirmbilder            


Elektronik- und Elektroforum Forum Index   >>   Elektroinstallation        Elektroinstallation : Alles über Installation
Achtung immer VDE beachten !!


Autor
Fremdspannung

    







BID = 159649

Doofy83

Gelegenheitsposter


Avatar auf
fremdem Server !
Hochladen oder
per Mail an Admin

Beiträge: 64
Wohnort: Dieburg
Zur Homepage von Doofy83 ICQ Status  
 

  


Sorry ich muß dieses Thema nochmal aufgreifen weil es für mich immer noch nicht erledigt ist.

Nehmen wir mal folgendes Beispiel an:
Eine Umwälzpumpe einer großen Heizungsanlage wird von einem Schaltschrank aus gesteuert und gespeist. Die Pumpe verfügt über eine externe Ausschaltfunktion (EXT. AUS). Diese ist im Schaltschrank nur über einen Öffnerkontakt eines Relais geführt. Zieht das Relais an wird die Pumpe über den "EXT AUS" abgeschaltet.

Nun zu meinen Fragen:
Da man aus der Beschreibung der Pumpe nicht ersehen kann welche Spannung von dem "EXT AUS" an den Schaltschrank zurückgeben wird, müßte man im Schaltschrank diesen Kontakt als Fremdspannung (Klemmleiste X5) behandeln und mit orange verdrahten.
Da aber die Spannung von "EXT AUS" abschaltbar ist indem man die Pumpe von der Versorgungspannung trennt, wäre die Einstufung als Fremdspannung auch nicht ganz korekt.
Wattt ist denn nu rischdisch???



BID = 159658

123abc

Schreibmaschine



Beiträge: 2212
Wohnort: Hamburg

 

  

So wie es aussieht gibt es im Steuerschrank keine Fremdspannung.

Am ext.aus Schütz liegt jedoch Fremdspannung der Heizungsanlage an und sollte gekennzeichnet werden.

123abc

BID = 159679

Doofy83

Gelegenheitsposter


Avatar auf
fremdem Server !
Hochladen oder
per Mail an Admin

Beiträge: 64
Wohnort: Dieburg
Zur Homepage von Doofy83 ICQ Status  

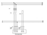
Wenn du mit dem EXT AUS Schütz den von mir mit K1A kezeichneten meinst, der ist im steuerschrank.
Der Untere Kasten soll nur die Pumpe darstellen!

BID = 159691

eah

Gerade angekommen


Beiträge: 3

Hallo,
der Schaltschrank hat doch bestimmt einen Hauptschalter womit man die gesamte Anlage spannungsfrei schalten kann.

Wenn die Anlage spannungsfrei ist und der ext Aus für die Pumpe auch spannungsfrei ist dann ist es keine Fremdspannung die gesondert (orange) verdrahtet werden muß.

BID = 159700

blademaker

Schriftsteller


Avatar auf
fremdem Server !
Hochladen oder
per Mail an Admin

Beiträge: 587
Wohnort: Schwalmstadt
Zur Homepage von blademaker

Der EXT.AUS wird doch über den normalen Steuerstromkreis des Schaltschrankes gespeist, warum sollte es sich dann um einen Sonderstromkreis handeln? Ist doch eine einfache Verdrahtung. Ein Taster, oder Schalter für das Relais der außen am Schrank oder sonstwo sitzt sollte doch sehr wahrscheinlich auch über den Schrank gespeißt werden, oder wie soll das genau aufgebaut werden?

BID = 159734

Doofy83

Gelegenheitsposter


Avatar auf
fremdem Server !
Hochladen oder
per Mail an Admin

Beiträge: 64
Wohnort: Dieburg
Zur Homepage von Doofy83 ICQ Status  

Genau das sage ich doch auch!!!
Aber woher bitte sollte man jetzt wissen welche spannung dieser bischh... ext aus ist. Kann ja sein das die in der Pumpe heruntergeschraubt wird!!! Also welche farbe welcher querschnitt???

BID = 159808

blademaker

Schriftsteller


Avatar auf
fremdem Server !
Hochladen oder
per Mail an Admin

Beiträge: 587
Wohnort: Schwalmstadt
Zur Homepage von blademaker

Wie wäre es wenn du mal den Steuerstromkreis und nicht den Laststromkreis zeichnest?

Dein Hilfsrelais sollte vielleicht nicht unbedingt so heißen wie der Schütz, sprich K2 wäre nicht schlecht.

Dann wäre die Sache bestimmt einfacher.

Es kommt nämlich die Frage, schaltet das Relais den Schütz K1, oder trennt es die Verbindung im Motor (irgendeine Schutzschaltung?)

Poste dochmal die ganzen Unterlagen des Motors, vielleicht bringt uns das weiter.

BID = 159811

Daniel B

Stammposter



Beiträge: 281
Wohnort: k-wald

Hi ,was für eine Spannung liegt denn überhaupt an dem externen Kontakt ? Wenn du 230 V AC schaltest nimmst du rot Querschnitt < 0,75 mm², wenn es 24 V DC sind nimmst du dunkelblau 0,5 mm² ,oder eine andere Farbe falls Ihr Betriebsinterne Normen habt.
Jede Elektrofachkraft weiss dass roter Draht "Steuerung allgemein" bedeutet und das dann die Spannung zwischen 24 AC und 230 V AC ist.
Dies aber als Fremdspannung zu verdrahten wäre sicher falsch .

Greetz Daniel

BID = 160897

Doofy83

Gelegenheitsposter


Avatar auf
fremdem Server !
Hochladen oder
per Mail an Admin

Beiträge: 64
Wohnort: Dieburg
Zur Homepage von Doofy83 ICQ Status  

Danke erstmal an alle.

Zu blademaker:
Danke das wies ich auch aber wenn du mal genau hin siehst, heißt das hilfsrelais K1A"AAAAAAA" und der Schütz nur K1.
Nach DIN 40 719 Teil 2 -> "Kennbuchtstaben für die Kennzeichnung allgemeiner funktion (nach Kennzeichnungsblock C)" ist Kennbuchstabe A = Hilfsfunktion oder Funktion AUS.
Ok ich hätte noch ein M für hauptfunktion hinter die Bez. des Leistungsschützes setzen können.
Den ganzen Steuerstromkreis für die Pumpe in diesem fall zu zeichnen wäre zu umständlich, da ich zur zeit leider kein gebrauchbares CAD Programm habe. Auserdem würde es nur zur verwirrung beitragen. Ist einfach nur ne Sicherheitskette (dbs) die, wenn sie unterbrochen wird, K1A anziehen lässt und die Pumpe über den EXT AUS abschaltet.

Genaue unterlagen hab ich im moment leider nicht zur hand. Kann aber mit 100%iger sicherheit sagen das die Spannung EXT AUS nicht angegeben ist. Deshalb weis ich immer noch nicht welche Verdrahtungsfarbe ich hier verwenden soll.

BID = 160912

pwk20

Stammposter

Beiträge: 203

Sollten Sicheheitsketten nicht drahtbruchsicher ausgeführt werden?

M.E. müsste K1A abfallen, wenn die Sicherheitskette unterbrochen wird und es muss ein Schließer-Kontakt verwendet werden, der im normalfall (d.h. alles OK) dann geschlossen ist.


BID = 160920

Doofy83

Gelegenheitsposter


Avatar auf
fremdem Server !
Hochladen oder
per Mail an Admin

Beiträge: 64
Wohnort: Dieburg
Zur Homepage von Doofy83 ICQ Status  

Haste resscht!!!
Kurzer Denkfehler von mir.
Aber hast du sonst keine idee zur Verdrahtungsfarbe?

BID = 160939

Daniel B

Stammposter



Beiträge: 281
Wohnort: k-wald

Hi ,Sicherheitskreise machen wir im Betrieb weiss, wenns Steuerung AC (24-230 V )ist dann machste es rot sind es 24 V DC dann dunkelblau ,oder eine entsprechende interne Firmennorm.

Greetz Daniel

BID = 161032

pwk20

Stammposter

Beiträge: 203

Ich persönlich würde es in der Farbe der Steuerspannung der Pumpe auslegen.

Alternativ kannst du versuchen, die anliegende Spannung beim Hersteller anzufragen.

Als Fremdpannung würde ich das nicht sehen, da hier keine Spannung vorhanden ist, wenn der Schaltschrank spannungsfrei ist.

BID = 161045

Indako

Gelegenheitsposter



Beiträge: 62

Hallo

Mal eine Frage, warum soll der Externe-Aus der Pumpe überhaupt in den Schaltschrank. Ist zwar ein paar Jahre her, das ich so eine Pumpe mit Extern-Aus hatte. Wenn ich mich Richtig erinnere, dient dieser Extern-aus eigentlich nur für Anwendungen ohne Schaltschrank. Z.B. um die Drehstrompumpe ohne großen Aufwand über eine Schaltuhr oder über den Sicherheitstemperaturbegrenzer einer Fußbodenheizung ab zu Schalten.

Wenn eine Schaltschranksteuerung vorhanden ist, dann wird er in der Pumpe nur gebrückt. Denn
1. Erfolgt die Komplette Steuerung Ein-Aus im Schaltschrank bei dir hier über K1. Zusätzliche Abschaltung über K1A währe doppelt gemoppelt.
2. Kannst du diesen Kontakt Extern-Aus nicht für deine Notkette verwenden, denn wenn ich es Richtig im Kopf habe, erfolgt die Abschaltung in der Pumpe rein Elektronisch. Was für eine Sicherheitskette nicht sicher genug ist (z.B. Notaus in SPS-Steuerungen).


Kannst ja mal trotzdem Hersteller und Typ Pumpe angeben, vieleicht hilft das weiter.

Indako


Zurück zur Seite 1 im Unterforum          Vorheriges Thema Nächstes Thema 


Zum Ersatzteileshop


Bezeichnungen von Produkten, Abbildungen und Logos , die in diesem Forum oder im Shop verwendet werden, sind Eigentum des entsprechenden Herstellers oder Besitzers. Diese dienen lediglich zur Identifikation!
Impressum       Datenschutz       Copyright © Baldur Brock Fernsehtechnik und Versand Ersatzteile in Heilbronn Deutschland       

gerechnet auf die letzten 30 Tage haben wir 17 Beiträge im Durchschnitt pro Tag       heute wurden bisher 10 Beiträge verfasst
© x sparkkelsputz        Besucher : 187978460   Heute : 8772    Gestern : 28182    Online : 253        27.12.2025    20:07
14 Besucher in den letzten 60 Sekunden        alle 4.29 Sekunden ein neuer Besucher ---- logout ----viewtopic ---- logout ----
xcvb ycvb
0.0439920425415