| Autor |
|
Schützsteuerung mit Zeit???? Hilfe |
|
|
|
|
BID = 128690
n1c0 Gerade angekommen
Beiträge: 2
|
|
Hallo, hab ein Prob, soll eine Schaltung entwickeln und bekomme sie nicht hin
Also es handelt sich um eine Schützschaltung mit zeitgesteuerter umschaltung.
Es soll ein motor zuerst 5sec rechts dann 5 sec links dann 5sec rechts usw. laufen. Der Lastkreis ist kein prob es geht um den steuerkreis.
Ich habe 2 Schalter S0 der alles ausschaltet und S1 der alles in bewegung setzt. Dann noch Q1 für rechts und Q2 für links.
Es sollen 2 schaltungen sein einmal mit einem alten konventionellen Schütz keines von den neuen elektronischen und einmal eine schaltung mit einem elektronischem, was immer an spannung liegen muss nicht wie die älteren, glaube auch größeren.
kann mir jemand dabei helfen
wäre echt zum
am besten wäre eine zeichnung
Danke.
Gruß Michi
PS: gibt es ein programm womit man dies alles testen kann??Bzw selber zeichnungen machen kann.
[ Diese Nachricht wurde geändert von: n1c0 am 16 Nov 2004 18:17 ] |
|
BID = 128695
gretel Schreibmaschine
    
Beiträge: 1169 Wohnort: Deutschland
|
|
..evtl. Ersetzen der manuellen Usmchalter durch Umschaltrelais !
Gruss
Gretel
|
|
BID = 129037
n1c0 Gerade angekommen
Beiträge: 2
|
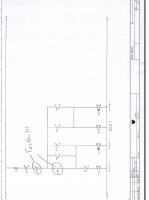
so hab mal ein wenig rumprobiert und dann kam das hier bei raus
Mit konventionellen normalen zeitschützen. das mit den neuen schützen die an spannung immer sein müssen, hab ich hinbekommen.
müsste doch funktionieren alle 5sec wechselt er die richtung???
[ Diese Nachricht wurde geändert von: n1c0 am 17 Nov 2004 15:34 ]
|
BID = 129634
Doofy83 Gelegenheitsposter
 
Avatar auf fremdem Server ! Hochladen oder per Mail an Admin
Beiträge: 64 Wohnort: Dieburg
|
Ich hab mir da noch was ausgedacht...
könnte funktionieren, muß aber nicht auserdem sind die Schütz nicht richtig gegeneinander verriegelt. Deine Schalter müßten dann auch Taster sein.
Auf jeden fall erstmal die Steuerung ohne Laststromkreis ausprobieren.
Viel glück!!!
[ Diese Nachricht wurde geändert von: Doofy83 am 18 Nov 2004 18:16 ]
|