| Autor |
|
|
|
BID = 108354
marco_m Gerade angekommen
Beiträge: 9
|
|
Geräteart : Fernsehgerät
Hersteller : Löwe
Gerätetyp : Modus 4972
Messgeräte : Multimeter
______________________
Hallo an alle,
ich habe einen Modus 4972 mit dem defekten Schaltnetzteil,
also habe ich im Netztteil BUZ 91A und TDA 4605 getauscht und alle Dioden und Wiederstände geprüft. Nach dem nächsten Einschalten waren die Sicherung und der BUZ 91A wieder durch.
Hat jemand einen Schaltplan oder einen Tipp für mich.
Danke.
Marco.
[ Diese Nachricht wurde geändert von: marco_m am 30 Sep 2004 11:41 ] |
Erklärung von Abkürzungen |
BID = 108394
torti Stammposter
    Beiträge: 479
|
|
Q2100
Sekundär vom Traffo alle Dioden auf Kurzschluß geprüft ?
Alle Widerstände >100kOhm an den Anschlüssen 2,3 und 6 des TDA gemessen ?
wenn R625 defekt :
R625 = 330kOhm zu ersetzen mit 2x680kOhm parallel
d.h. ein 680er in pos 625, der zweite in pos 634
... oder beide huckepack ...
[ Diese Nachricht wurde geändert von: torti am 30 Sep 2004 12:38 ] |
Erklärung von Abkürzungen |
BID = 108450
marco_m Gerade angekommen
Beiträge: 9
|
Hi torti,
danke für dein Posting, alle Dioden und Widerstände sind OK, ich ich kann eifach nichts mehr finden, kann man eigentlich alle Verbraucher auf der Sekundärseite des Trafos einfach abklemmen ?
Gruß.
Marco.
Erklärung von Abkürzungen |
BID = 108538
torti Stammposter
    Beiträge: 479
|
Nein. Bzw. wenn, dann muss eine Ersatzlast dran - eine 60Watt Glühbirne.
der Schaltplan fürs Netzteil kommt im nächsten post ...
Erklärung von Abkürzungen |
BID = 108544
torti Stammposter
    Beiträge: 479
|
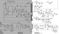
Hier der Plan vom Q2200. Sollte der gleiche sein wie der Q2100. Hab den anderen nicht verfügbar.
Nochmals zur Kontrolle. Der Widerstand R625 hat seine 330 KOhm ?
Der Fehler jedenfalls ist bekannt bei Loewe.

Erklärung von Abkürzungen |
BID = 108561
marco_m Gerade angekommen
Beiträge: 9
|
Danke torti,
ich werde gleich alles nochmal checken,
der 625 ist OK, es sind zwei Widerstände parallel.
Ich habe auch gelesen, dass manche "billige" Ausführungen von BUZ91A beim Einschalten sowieso rausfliegen...
was meinst du dazu ?
Gruß.
Marco.
P.S.Danke für den Schaltplan.
Erklärung von Abkürzungen |
BID = 108562
marco_m Gerade angekommen
Beiträge: 9
|
Woher bekommt man solche Schaltpläne, hast du auch den Rest davon ?
Gruß.
Marco.
[ Diese Nachricht wurde geändert von: marco_m am 30 Sep 2004 19:41 ]
Erklärung von Abkürzungen |
BID = 108622
marco_m Gerade angekommen
Beiträge: 9
|
Genial torti ! Du hattest Recht,
die ganze Zeit messe ich den Gesamtwiderstand von R625
und bekomme dabei etwa 680k, ich bin so blöd...
es sind also zwei 680k Widerstände, parallel geschaltet
aber in Wirklichkeit bringen die etwa 680k, ich habe mich also die gantze Zeit auf diese Zahl 680k konzentriert... Optisch sind beide unbeschädigt, ergeben aber zusammen etwa 680k, nach dem Tausch läuft der Fernseher wieder.
Vielen Dank für deine Hilfe, ich habe aber noch eine Bitte,
wenn Du den Rest von dem Schaltplan hast, dann schick ihn mir bitte per E-Mail.
Gruß.
Marco.
Erklärung von Abkürzungen |
BID = 117108
michele pisa Gerade angekommen
Beiträge: 1
|
sos from pisa
i have the same problem on Q 2100 power supply
BUZ 91A, TDA 4605 AND R625 replaced, but all outputs
are 30% less than normal, image is not wide and pinch off.
after ten minutes working buz 91a broken again
investigated in power supply and eht circuits
without any defective components found
do you have any idea abuit it?
thanks michele
Zitat :
torti hat am 30 Sep 2004 19:03 geschrieben :
|
Hier der Plan vom Q2200. Sollte der gleiche sein wie der Q2100. Hab den anderen nicht verfügbar.
Nochmals zur Kontrolle. Der Widerstand R625 hat seine 330 KOhm ?
Der Fehler jedenfalls ist bekannt bei Loewe.
|
Erklärung von Abkürzungen |