Stromversorgung Verkaufswagen (Street Food)

Im Unterforum Elektroinstallation - Beschreibung: Alles über Installation
Achtung immer VDE beachten !!

Elektronik Forum Nicht eingeloggt       Einloggen       Registrieren




[Registrieren]      --     [FAQ]      --     [ Einen Link auf Ihrer Homepage zum Forum]      --     [ Themen kostenlos per RSS in ihre Homepage einbauen]      --     [Einloggen]

Suchen


Serverzeit: 06 2 2026  15:07:31      TV   VCR Aufnahme   TFT   CRT-Monitor   Netzteile   LED-FAQ   Oszilloskop-Schirmbilder            


Elektronik- und Elektroforum Forum Index   >>   Elektroinstallation        Elektroinstallation : Alles über Installation
Achtung immer VDE beachten !!

Gehe zu Seite ( Vorherige Seite 1 | 2 | 3 | 4 Nächste Seite )      


Autor
Stromversorgung Verkaufswagen (Street Food)
Suche nach: stromversorgung (3378)

    







BID = 1006890

perl

Ehrenmitglied



Beiträge: 11110,1
Wohnort: Rheinbach
 

  



Offtopic :

Zitat : prinz. hat am  1 Dez 2016 10:09 geschrieben :

Mein letzter Verkaufswagen hat nen Fi mit 63A drinn
den Ich gebaut hab
Du baust Fehlerstrom-Schutzschalter selbst?

BID = 1006892

Ltof

Inventar



Beiträge: 9386
Wohnort: Hommingberg

 

  


Zitat :
der mit den kurzen Armen hat am  1 Dez 2016 06:23 geschrieben :

Zuerst mal würde ich mir Gedanken um die Beleuchtung machen. Dazu ist es zB möglich das komplett auf 12V DC mit LED zu machen.

Wozu soll das gut sein?
Anders als bei einem Camper ist hier keine autarke Nutzung nötig und möglich. Die Beleuchtung hat einen sehr geringen Anteil am Gesamtverbrauch. Geld sparen würde man damit auch nicht. Im Gegenteil: Akku, Ladegerät und (12V-)Beleuchtung kosten in der Anschaffung extra. Der Akku braucht Aufmerksamkeit und hält nicht ewig.

Bei Netzausfall bzw. zur Wartung tut es auch eine Taschenlampe.

_________________
„Schreibe nichts der Böswilligkeit zu, was durch Dummheit hinreichend erklärbar ist.“
(Hanlon’s Razor)

BID = 1006893

Stromi4711

Neu hier



Beiträge: 20

Das ist so korrekt. Auf 12V wird verzichtet da nicht nötig bei den gewünschten anforderungen.

Ich sitze jetzt erst mal daran einen (für mich als Laien) sinnvollen Schaltplan zu erstellen.
Den hoffe ich hier präsentieren zu dürfen.

BID = 1006896

djtongi

Stammposter



Beiträge: 258
Wohnort: Aalen-BW
ICQ Status  

Also der Anschluss gibt 3x 3680 im Optimalfall her.
Ich sage deswegen Optimalfall, weil CEE Dosen im Freien gerne mal altern und die Leitungslängen schnell mal etwas länger werden.

Ich habe vor 2 Jahren erst eine Imbissbude verkabelt und trotz Gasgrill waren 2 prof. Fritteusen und die 3 Kühl/Gefrierschränke zuviel für einen 16A anschluss. Das Ganze muss ja zuverlässig laufen. Wenn dir alle 2 Monate der CEE stecker abschmort mitten im Hochbetrieb ist auch nichts gewonnen


Dann merke ich, dass deine Ahnung für derartige Dinge sehr mangelhaft ist. Versteh mich nicht Faqlsch aber ich spreche hier auf langjähriger Erfahrung: Diese "Eigenleistungen" werden dann oft zu unfachgemäßen Installationen mit den billigsten Komponenten. Ich will dir damit nicht zu nahe treten, aber es gibt schon einen Grund, warum solche dinge nur von Elektrofachkräften ausgeführt werden darf.

Also sollte deine Vorgehensweise so aussehen:
-Elektrofachbetrieb kontaktieren, Leistungsdaten und vorhaben schildern.
-Auf deren Plan und Anweisung hin die vorgesehenen Komponenten montieren und dann
-den Anschluss dieser Komponenten vornehmen lassen
-Installation Messen/Prüfen und abnehmen lassen.


Da diese Installation wohl oft am limit laufen wird, würde ich keinesfalls billig-komponenten einsetzen. Wenn ich schon Conrad lese...



Zum Thema gleichzeitigkeit und Lastabwurf:

Sogenannte Lastabwurf-Relais können bei entsprechendem Strom andere Verbraucher abschalten. Wenn aber alle Komponenten wichtig sind, wird das schwierig. Normalerweise setzt man sowas bei Durchlauferhitzern ein, um z.B. Elektroheizungen abzuschalten.

Kühlschränke kann man vernachlässigen. Die haben einen etwas höheren Anlaufstrom, begnügen sich aber dann mit recht geringen strömen.

MEine Aufteilung wären:
C13A Kühlschränke
B13A Fritteuse
B13A Spülmaschine

ein Lastabwurf macht hier erstmal keinen sinn.
-Eine Spülmaschine läuft nunmal eine weile und die Elektronik mag es gar nicht, wenn man hier mitten im Betrieb den Stecker zieht.
-Fitteuse sollte eigentlich auch immer Heizbereit sein.
-Kühlschränke lohnen sich nicht abzuschalten

Dinge die man bei so einem Fall abwerfen kann sind: Untertisch-Boiler, Warmhalteplatten, .... allgemein, Geräte, deren verzögerter Einsatz nicht auffällt. Also daher sollte hier als erstes mal eine Geräteaufstellung mit Leistungsdaten und Funktionspriorität erfolgen, damit man mal sehen kann, was alles geplant ist und was man im notfall per lastabwurf stilllegen kann.

Mein Tipp wäre auch, auf jeden Fall eine 32A Leitung vorzusehen und auch zu verlegen und dann nur in Notfällen, wenn keine 32A zur Verfügung stehen auf 16A herunter-zu-adaptieren. Und ich habe bisher auf jedem Markt 32A Steckdosen gesehen!


Zum Thema Leistung und messung:

Die berechnung der Last muss ersteinmal auf die gleichzeitigkeit hin gestaffelt werden, DENN: du hast zwar theoretisch bei 16A Drehstromanschluss bei nennlast 11040W Leistung zur verfügung, jedoch sind die aufgeteilt in FESTE DREI MAL 3680W.

Die messung würde ich hier mit 3 Drehspulinstrumenten 0-35A realisieren.
Gibts z.B. als REG von Hager.

_________________
Elektroniker - Energie- & Gebäudetechnik
Elektrotechniker-Meister (fr. Informationstechnik)

Rechtschreibfehler & Sarkasmus sind kreatives/geistiges Eigentum des Verfassers und dürfen ohne Genehmigung nicht kopiert oder vervielfältigt werden

BID = 1006897

Stromi4711

Neu hier



Beiträge: 20

Zunächst einmal: Keine Sorge mir mit "klaren Worten" zu nahe zu treten.
Ich bin sehr offen für Kritik und Verbesserungen, zumal, wenn sie von einem Fachmann kommen.

Dann formuliere ich um. d.h. ich werde jetzt erst einmal alle möglichen Geräte auflisten, den Standort und die übrigen Komponenten.

Elektrogeräte für die Küche
Kühlschrank, Gefrierschrank,
Klimaanlage
Heizung
Licht etc.

Dies werde ich dann hier noch einmal vorstellen.

BID = 1006898

Offroad GTI

Urgestein



Beiträge: 12839
Wohnort: Cottbus


Zitat :
Was meinst du mit "Mit verteilen ist bei so hohen Nennleistungen schnell Essig."?
Angenommen, du hast fünf Geräte mit je 2kW Nennleistung. In Summe liegst du mit 10kW unter den maximal möglichen 11kW bei einer 16A Drehstromeinspeisung. Du kannst aber nicht zwei Geräte auf einen Außenleiter legen, da dieser dann überlastet werden würde. Du könntest nur je eines dieser Geräte an einen Außenleiter anschließen, die anderen beiden müssten dann jeweils aus bleiben.



_________________
Theoretisch gibt es zwischen Theorie und Praxis keinen Unterschied. Praktisch gibt es ihn aber.

[ Diese Nachricht wurde geändert von: Offroad GTI am  1 Dez 2016 11:35 ]

BID = 1006904

Trumbaschl

Inventar



Beiträge: 7670
Wohnort: Wien

Also ich helfe jedes Jahr auf einem Festival in der Küche wo wir Fritteusen von einem örtlichen Restaurant haben. Die haben jeweils einen Schukostecker und der ganze Stand mit zwei Fritteusen, Licht, Kühlschrank (Haushaltsgerät) und Kleinzeug (Stab- und Handmixer) ist mit 1x16 A angeschlossen, d.h. Schukostecker. Gab noch nie Probleme. Herd ist allerdings Propan, aber wir reden hier immerhin schon von zwei ernstzunehmenden Fritteusen an 1x16 A.

_________________
"Und dann kommen's zu ana Tür da steht oben "Eintritt verboten!" und da miaßn's eine!"

BID = 1006932

prinz.

Moderator

Beiträge: 8935
Wohnort: Gifhorn und Wolfenbüttel
Zur Homepage von prinz. ICQ Status  

Hier vieleicht nicht von Bedeutung aber sonst muß
da ein Phasenwender rein

Offtopic :


Zitat :
Du baust Fehlerstrom-Schutzschalter selbst?

Klar dann fällt das wiederliche auslösen im
Fehlerfall endlich weg die Hersteller bekommen
das ja nicht hin


_________________
Nur für nicht Mutige
1.Freischalten
2.Gegen Wiedereinschalten sichern
3.Spannungsfreiheit allpolig feststellen
4.Erden und kurzschließen
5.Benachbarte, unter Spannung stehende Teile abdecken oder abschranken

BID = 1006935

123abc

Schreibmaschine



Beiträge: 2213
Wohnort: Hamburg

Für einen Verkaufswagen wird auch ein geeichter Zähler benötigt.

Von der Fa. Berg gibt es z. B. Zähler welche Dir auch die Stromaufnahme anzeigen können.

Als Einspeisung sollte man gleich auf 32A.

Bei 16A haut es sonst auch die Sicherung vor deinem Wagen mit raus.

Wenn im Verkaufswagen Lebensmittel angeboten werden braucht der Wagen fließend Wasser, ein Wasserkanister wird meist nicht akzeptiert.


BID = 1006937

prinz.

Moderator

Beiträge: 8935
Wohnort: Gifhorn und Wolfenbüttel
Zur Homepage von prinz. ICQ Status  


Zitat :
ein Wasserkanister wird meist nicht akzeptiert.

Dem ist nicht so


Zitat :
Für einen Verkaufswagen wird auch ein geeichter Zähler benötigt.

Die Marktplätze haben meistens Ihre eigenen


_________________
Nur für nicht Mutige
1.Freischalten
2.Gegen Wiedereinschalten sichern
3.Spannungsfreiheit allpolig feststellen
4.Erden und kurzschließen
5.Benachbarte, unter Spannung stehende Teile abdecken oder abschranken

BID = 1007024

Stromi4711

Neu hier



Beiträge: 20

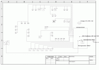
Ich habe jetzt einmal alle mir bekannten Fakten zusammen getragen und in ein Diagramm gezeichnet.

Steckdosen
Die nicht mit einer Watt-Zahl versehenen Steckdosen sollen frei verfügbar sein. D.h. dort wird bei Bedarf z.b. ein Quirl angeschlossen. also nichts mit hohem Verbrauch.

Kochgeräte
Von V8 bis V13 (Kochgeräte werden hier variabel eingesetzt und sind austauschbar) werden jeweils die stärksten Verbrauchen angeschlossen. So z.B. drei Fritteusen mit jeweils einem Schukostecker und max. 3200W.

Übrige Verbraucher
Die übrigen Verbraucher V1 bis V7 sind fest installiert.

Anzeige
Im Wagen soll es ein Display geben wo man die aktuellen Werte ablesen kann: kW, kWh, V, A

Wahl der Geräte
Ideal wäre es, wenn man aktiv durch Zu- oder Abschalten der Geräte auf den unterschiedlich anliegenden Strom reagieren könnte.
D.h. wenn man nur 16A Kraftstrom hat, dann sieht man die max. anliegende Stromstärke und die Spülmaschine lässt sich dann nicht zuschalten.

Stromzufuhr
Es soll vier Möglichkeiten geben dem Verkaufswagen Strom zuzuführen (ich weiß, schlecht ausgedrückt ;-).
1. 230V Kraftstrom für "Vollbetrieb"(16A oder 32A, wenn der Wagen fest steht)
2. Wechselrichter 500W für "Fahrtbetrieb z.B. Kühlung" (Auto 12V während der Fahrt)
3. Stromgenerator 1000W für Stationären Betrieb ohne Kraftstrom
4. 230V "normaler" Strom aus 16A Haushaltssteckdose

Am Ende soll das natürlich ein Fachmann anschließen und abnehmen. Ich möchte aber so viel vorbereiten (Kosten sparen) wie möglich.









[ Diese Nachricht wurde geändert von: Stromi4711 am  2 Dez 2016 15:58 ]

BID = 1007084

Stromi4711

Neu hier



Beiträge: 20

Gibt es dazu denn noch eine kurze anregung? Ist das soweit richtig gedacht von mir. Spart nicht mit Kritik.

BID = 1007086

der mit den kurzen Armen

Urgestein



Beiträge: 17437

Auf den Wechselrichter mit 500W kannst du Verzichten! Dein Generator kann durchaus auch mehr Leistung haben zb 5kW. Besser aber sogar 10 oder 15 kW. Mit 500W versorgst du keinem Kühlschrank höchstens eine Kühltasche, und da wäre eine 12V Variante geeigneter.

_________________
Tippfehler sind vom Umtausch ausgeschlossen.
Arbeiten an Verteilern gehören in fachkundige Hände!
Sei Dir immer bewusst, dass von Deiner Arbeit das Leben und die Gesundheit anderer abhängen!

BID = 1007088

Stromi4711

Neu hier



Beiträge: 20

Generator wird gebraucht, wenn der Kfz-Moto und damit der Wechselrichter aus ist. Beides (Wechselrichter und generator) dienen lediglich für den Transport der Lebensmittel im Kühl- bzw. Gefrierschrank.
Vor Ort wird dann das Stromnetz genutzt.

BID = 1007094

der mit den kurzen Armen

Urgestein



Beiträge: 17437

Mit den 500W des Wechselrichters wirst du aber einen Kühlschrank oder eine Gefriertruhe nicht betreiben können. Der Wechselrichter kann max "kurzzeitig" den doppelten Strom liefern . Das Wären dann 500VA:230V= 2,17A und und der Spitze 4A . Dein Kompressormotor nimmt bei150VA und 230V ca 0,65A auf aber im Anlauf das 5 bis 10 fache davon . Sind dann rund 4 A bis ca 6,5A die der Wechselrichter liefern muss ohne das er wegen Überlast abschaltet! So weiter im Text Wechselrichter mit 1000W und Generator mit 1000W reichen gerade mal für die Kühlmöbel. Warum das Geld zum Fenster raus werfen wenn du mit 10 kW Generator auch Mobil deinen Wagen versorgen kannst ? Nebenbei der Wechselrichter wird normal aus einem Akku versorgt und dieser kann über die LIMA des Zugfahrzeuges auch geladen werden! Ich denke mir schon etwas dabei wenn ich schreibe Licht auf 12V auslegen. An dem 12V 200Ah Akku schleppst du dich im Wagen nicht lahm!
Edit: warum wurden wohl Kühlakkus erfunden? Die kannst du Zuhause auch vor kühlen in der Gefriertruhe!

_________________
Tippfehler sind vom Umtausch ausgeschlossen.
Arbeiten an Verteilern gehören in fachkundige Hände!
Sei Dir immer bewusst, dass von Deiner Arbeit das Leben und die Gesundheit anderer abhängen!

[ Diese Nachricht wurde geändert von: der mit den kurzen Armen am  3 Dez 2016 18:07 ]


Vorherige Seite       Nächste Seite
Gehe zu Seite ( Vorherige Seite 1 | 2 | 3 | 4 Nächste Seite )
Zurück zur Seite 1 im Unterforum          Vorheriges Thema Nächstes Thema 


Zum Ersatzteileshop


Bezeichnungen von Produkten, Abbildungen und Logos , die in diesem Forum oder im Shop verwendet werden, sind Eigentum des entsprechenden Herstellers oder Besitzers. Diese dienen lediglich zur Identifikation!
Impressum       Datenschutz       Copyright © Baldur Brock Fernsehtechnik und Versand Ersatzteile in Heilbronn Deutschland       

gerechnet auf die letzten 30 Tage haben wir 13 Beiträge im Durchschnitt pro Tag       heute wurden bisher 11 Beiträge verfasst
© x sparkkelsputz        Besucher : 188972329   Heute : 13994    Gestern : 25821    Online : 249        6.2.2026    15:07
35 Besucher in den letzten 60 Sekunden        alle 1.71 Sekunden ein neuer Besucher ---- logout ----viewtopic ---- logout ----
xcvb ycvb
0.0562479496002