| Autor |
|
Musikbeschallung? |
|
|
|
|
BID = 348810
lionhard Neu hier

Avatar auf fremdem Server ! Hochladen oder per Mail an Admin
Beiträge: 43
|
|
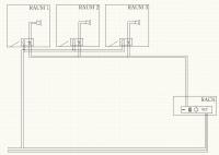
Musikbeschallung:
Würde das funktionieren?
|
|
BID = 348813
sam2 Urgestein
     
Beiträge: 35321 Wohnort: Franken (bairisch besetzte Zone)
|
|
Jein!
Will sagen:
Im Prinzip ja. Aber eben nur, wenn die Impedanzverhältnisse beachtet werden!!!
Sprich - der Verstärkerausgang muß für möglichst niederohmige LS geeignet sein (z.B. 2 bis 4 Ohm) und die verwendeten LS möglichst hochohmig (z.B. 8 oder 16 Ohm, abhängig von deren Anzahl).
Sonst raucht der Kasten ab...
Außerdem muß für sichere elektrische Trennung (Einhaltung der Kriech- und Luftstrecken etc.) bei den Schaltern gesorgt werden. Die Leitungslängen könnten da auch Probleme machen.
Besser die Ferneinschaltung über Kleinspannung mittels Relais realisieren.
_________________
"Das Gerät habe ich vor soundsoviel Jahren bei Ihnen gekauft! Immer ist es gegangen, immer. Aber seit gestern früh geht es plötzlich nicht mehr. Sagen Sie mal, DA STIMMT DOCH WAS NICHT???" |
|
BID = 348831
clembra Inventar
     
Beiträge: 5402 Wohnort: Weeze / Niederrhein
|
Bei 3x 8Ω Boxen und einem 4Ω Ausgang rauchts schon, wenn alle an sind, denn 8 / 3 < 4
_________________
Reboot oder be root, das ist hier die Frage.
|
BID = 348838
lionhard Neu hier

Avatar auf fremdem Server ! Hochladen oder per Mail an Admin
Beiträge: 43
|
Was gäbe es den da noch für Möglichkeiten?
Wäre die Musik bei einer höheren Inpendanz (>8 Ohm) nur leiser oder geht da mein Verstärker auch kaputt?
|
BID = 348846
clembra Inventar
     
Beiträge: 5402 Wohnort: Weeze / Niederrhein
|
Bei zu hoher Impedanz der Lautsprecher passiert dem Verstärker eigentlich nichts. Die Wiedergabe kann dann etwas komisch klingen und es kann auch Leiser sein, aber das liegt am Verstärker.
Also er geht im umgekehrten Fall kaputt, wenn die Impedanz der Boxen zu niedrig für den Amp ist, und je mehr Boxen, desto niedriger ist die Gesamtimpedanz (da Parallelschaltung)
Alternativmöglichkeiten:
- für jeden Raum einen eigenen Verstärker (evtl. direkt an den Boxen / Aktivboxen)
- ELA-Verstärker und Trafos an den Boxen, dadurch werden die Boxen sehr hochohmig und es können über lange Strecken viele parallel geschaltet werden (natürlich auch über kurze )
_________________
Reboot oder be root, das ist hier die Frage.
|
BID = 348866
Mr.Ed Moderator
      
Beiträge: 36328 Wohnort: Recklinghausen
|
Das mit der ELA-Anlage wurde lionhard ja schon mehrfach vorgeschlagen. Statt auf die Vorschläge einzugehen macht er aber lieber einen neuen Thread zum gleichen Thema auf...
https://forum.electronicwerkstatt.de.....eige=
_________________
-=MR.ED=-
Anfragen bitte ins Forum, nicht per PM, Mail ICQ o.ä. So haben alle was davon und alle können helfen. Entsprechende Anfragen werden ignoriert.
Für Schäden und Folgeschäden an Geräten und/oder Personen übernehme ich keine Haftung.
Die Sicherheits- sowie die VDE Vorschriften sind zu beachten, im Zweifelsfalle grundsätzlich einen Fachmann fragen bzw. die Arbeiten von einer Fachfirma ausführen lassen.
|
BID = 349677
Rahmenantenne Schriftsteller
    
Beiträge: 552 Wohnort: Kiel
|
Hallo,
müssen die Boxen unbedingt einzeln abschaltbar sein?
Wenn nicht, gibts ne andere Möglichkeit, die ich früher genutzt habe; nämlich drei Boxen eines Kanals einfach in Reihe schalten. Wenns 4 Ohm Boxen sind, dann ergibt das 12 Ohm. Dem Verstärker kann so nichts passieren! Natürlich wird dann nicht die volle Leistung übertragen; aber Leistung hat man in der Regel genug, und wenn man sich nicht sein Gehör kaputtmachen will, dann langt das, was man an Lautstärke auch mit 12 Ohm dran bekommt, völlig aus!
Ich habe früher mal 4 Boxen an einem Verstärker gehabt, um einen schönen Raumklang zu bekommen (Mittlerweile praktiziere ich heute das richtige Stereodreick mit 2 Boxen und einer sehr guten Stereo-Ortung....). Da gabs auch das Problem das zwei 4 Ohm Boxen pro Kanal dran waren. Also hab ich zwei Boxen eines Kanals einfach in Reihe geschaltet - das ergab 8 Ohm pro Kanal. Und den ganzen Laberkram das man dann Klangverschlechterung bekommt, sich die Boxen gegenseitig beeinflussen können usw. muß man nicht so ernst nehmen. Wer High-End-Qualitäten will, nimmt sowieso erstmal zwei Boxen und dann auch andere Kaliber!
Über Klangunterschiede zu reden macht sowieso nur Sinn, wenn man auch die Boxen stereomäßig ordentlich aufstellt; also gleichseitiges Dreieck mit dem Hörer, genug Wandabstand usw. Wenns nur ne Beschallung oder ein Raumklang mit 4 Boxen sein soll, ist das eh egal.
Schöne Grüsse
|