Anschliessen von Thermostaten und Stellmotoren für Fussbodenheizung Im Unterforum Elektroinstallation - Beschreibung: Alles über Installation
Achtung immer VDE beachten !!
| Autor |
Anschliessen von Thermostaten und Stellmotoren für Fussbodenheizung Suche nach: fussbodenheizung (67) |
|
|
|
|
BID = 131364
hobbydueser Gerade angekommen
Beiträge: 11
|
|
Hallo zusammen,
ich habe folgendes Problem und hoffe auf Eure Hilfe:
Ich möchte bei mir zu Hause eine FBH anschliessen. Wie ich meine Ausbildiung als Elektroinstallateur 1986 gemacht habe, da hatte ich kein Berührungskontakt mit sowas gehabt. Gab es da überhaupt schon FBH?
Also, bei den Thermostaten liegen 3x1,5 Leitungen. Die Thermostate haben 4 Anschlüsse (L,N,Winterzeichen und ich denke 2 Wellenlienien, die parallel laufen für evtl. Sommerzeichen).
Stellmotor mit 2 Adern blau und braun.
Zuleitung 3x1,5.
Ich habe von einem Freund folgende Info bekommen, was jedoch nicht funktioniert hat.
Zuleitung L durchverbinden an L Thermostate. Jedes Stellmotor N mit Zuleitung N verbinden. Jedes Thermostat N mit L Stellmotor verbinden.
1. Ist die Vorgehensweise richtig? Ich habe jedoch am Stellmotor immer 220 Volt gemessen, egal welche Stellung das Thermostat hat.
2. Die Fussbodenheizung ist kalt. Kann es sein, dass es jetzt verkehrt rum ist, dass die Anschlüsse also durch die Stellmotoren in geschlossener Stellung sind. Wie kann ich das prüfen?
3. Wie ist das am Thermostat, mit den anderen beiden Anschlüssen ausser L und N, die ich ja nicht nutze. Weiss jemand, wofür die sind?
4. Kann mir jemand sagen, wie ich am besten nach anschliessen der ganzen Sachen, richtig prüfen kann. Bsp. Wenn ich Thermostat regele muss ich soviel messen usw.
5. Wie prüfe ich die Stellmotoren, da die Heizungsfirma meinte, dass diese träge reagieren mit ca. 10 min Verzögerung. Ist das korrekt?
Vielen Dank im voraus für Eure Hilfe.
Gruss
hobbydueser
|
|
BID = 131377
gretel Schreibmaschine
    
Beiträge: 1169 Wohnort: Deutschland
|
|
Hallo hobbydueser ,
das klingt ja alles toll ...
Kannst Du evtl. die Herstellerfirma und den genauen Typ des Thermostats nennen , evtl. ist das auch ein Raumregler oder was ähnliches , und benötigt Brücken oder externe Fühler !
Im Allgemeinen sind Stellmotoren so ausgeführt, dass sie bei anliegender Spannung aufgehen und bei Spannungswegfall zugehen .. mehr ist da nicht !
Gruss
Gretel
|
|
BID = 131380
gretel Schreibmaschine
    
Beiträge: 1169 Wohnort: Deutschland
|
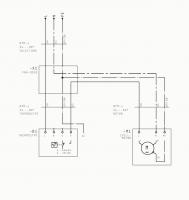
...noch ein Schaltplan für universalen Thermostat !
Gruss
Gretel
|
BID = 131458
sam2 Urgestein
     
Beiträge: 35321 Wohnort: Franken (bairisch besetzte Zone)
|
Führt zu den Thermostaten NUR diese dreiadrige Leitung (mit oder ohne PE?) Und ab wo geht eine Leitung zu den Stellmotoren?
_________________
"Das Gerät habe ich vor soundsoviel Jahren bei Ihnen gekauft! Immer ist es gegangen, immer. Aber seit gestern früh geht es plötzlich nicht mehr. Sagen Sie mal, DA STIMMT DOCH WAS NICHT???"
|
BID = 131468
pwk20 Stammposter
    Beiträge: 203
|
Hallo,
ohne genauere Angaben zu den verwendeten Typen ist so was natürlich schwierig zu sagen...
Es gibt jedoch auch Thermostate, die mit einer sog. themischen Rückführung arbeiten. Hierbei wird an die Klemme N ganz normal der Neutralleiter aufgelegt. Das dient dazu, dem Themostat eine größerer Genauigkeit zu verpassen.
Zwischen den Klemmen L und Winter-/Sommersymbol (um deine Ausdrucksweise zu übernehmen) liegt dann ein Wechslerkontakt, d. h. das Thermostat kann zum Heizen und zum Kühlen verwendet werden.
Am Wintersymbol (vermutlich ein Stern) liegt dann Spannung an, wenn die Temperatur oberhalb der eingestellten Temperatur liegt und am Sommersymbol (die parallelen Wellen) ist Spannung wenn die Temperatur unterhalb der eingestellten Temperatur liegt.
Einen Schaltungsvorschlag für solch eine Variante kann man aber erst nach genaueren Informationen machen, weil sonst vielleicht nicht zulässige Basteleien dabei herauskommen.
Schick doch mal nähere Angaben.
mfg
PWK
|
BID = 131474
Lightyear Inventar
     
Beiträge: 7909 Wohnort: Nürnberg
|
Hallo Du Dueser,
also ich interpretiere die Anschlüsse Deines Reglers folgednermassen:
L=Aussenleiter
N=Neutralleiter
Wellensymbol=Heizen
Wintersymbol (Stern)=Kühlen.
Demnach würde ich den Thermostaten normal mit N & L versorgen.
Den Stellantrieb dann an N und Sommersymbol anschliessen.
Dies setzt jedoch voraus, dass ausreichend Adern in den Leitungen vorhanden sind.
Demnach schliese ich mich meienen Vorpostern an: Bitte mehr Infos.
_________________
Gruß aus Nürnberg,
Lightyear
Alles unter 1000°C ist HANDWARM!
Alle Tipps ohne jegliche Gewähr, die Einhaltung aller Vorschriften obliegt dem Ausführenden!
|
BID = 131825
hobbydueser Gerade angekommen
Beiträge: 11
|
Schönen guten morgen zusammen,
also jetzt habe ich auch weitere Infos vor mir liegen.
Berker Raumtemperaturregler Typ 2026 00 oder 2030 00
L=Außenleiter
N=Neutralleiter
Wellensymbol=Lastanschluss Heizen
Frostsymbol=Lastanschluss Kühlen
Stellmotoren:
Cronatherm Stellantrieb, stromlos-geschlossen, 230 V, 2 W,
Art.-Nr. 610301
1 Stellantrieb NOVADRIVE (weil wohl kein anderes mehr da war, lt. Heizfirma; ich denke aber, dass da kein Unterschied sein dürfte)
Folgende Verkabelung wurde durchgeführt:
Im Fussbodenheizungskasten kommt eine Zuleitung 3x1,5 an.
Von den Thermostatdosen gehen jeweils 3x1,5 Kabel zum FBH Kasten.
Lightyear, heisst das, dass eine Leitung fehlt?
Kurz zur Wiederholung:
Ist-Zustand (funktioniert jedoch nicht):
Zuleitung L durchverbinden an L Thermostate. Jedes Stellmotor N mit Zuleitung N verbinden. Jedes Thermostat N mit L Stellmotor verbinden.
Wenn ich ja Thermostat ganz normal mit L und N versorge, dann habe ich ja nur noch den PE übrig. Da wäre ja dann keine Leitung mehr zum Stellmotor oder irre ich mich?
Hallo Gretel, herzlichen Dank für den Schaltplan. Nur glaube ich, dass ich das ohne Eure Hilfe das gesamte laufen zu lassen, nicht schaffen kann.
Muss jetzt wieder etwas arbeiten. Werde in der Mittagspause wieder reinkommen, da ja auch das Wetter schon frostig wird und unseren kleinen Kindern schon kalt wird.
Gruss
hobbydueser
|
BID = 131831
sam2 Urgestein
     
Beiträge: 35321 Wohnort: Franken (bairisch besetzte Zone)
|
Das soll also heißen, daß es sich um dreiadrige Leitungen des Typs "-J" bzw. "G" handelt, also mit Schutzleiter.
Wer hat denn diese völlig unzureichenden Leitungen verlegt???
Den Planungs- oder Ausführungsverantwortlichen sollte man für den jetzt entstehenden Mehraufwand haftbar machen!
Versuche einmal folgendes:
Wenn der N am Thermostaten nur für die thermische Rückführung benötigt wird (und nicht für Speisezwecke wie z.B. Schaltuhrfunktion), dann laß ihn weg und benutze die blaue Ader stattdessen, um den Heizungs-Ausgang (Wellenlinien) des Thermostaten mit dem Stelleingang der Stellmotors zu verbinden.
Dann testen und Ergebnis hierher!
_________________
"Das Gerät habe ich vor soundsoviel Jahren bei Ihnen gekauft! Immer ist es gegangen, immer. Aber seit gestern früh geht es plötzlich nicht mehr. Sagen Sie mal, DA STIMMT DOCH WAS NICHT???"
[ Diese Nachricht wurde geändert von: sam2 am 24 Nov 2004 17:14 ]
|
BID = 131889
pwk20 Stammposter
    Beiträge: 203
|
Ich kann mich da nur der Meinung von Sam2 anschliessen,
mach den Ausführenden dafür verantwortlich und lass es
nachbessern.
Du benötigst zum Thermostat entweder eine 3-adrige Leitung OHNE Schutzleiter oder (und besser!) mindestens eine 4-adrige MIT Schutzleiter (grün/gelb).
Man kann natürlich versuchen, auf die thermische Rückführung zu verzichten, was jedoch laut Aussage on Berker zu großen Temperaturschwankungen führt. Anscheinend wird der N-Leiter aber sonst für nichts anderes benötigt (zumindest bei einer der genannten Art.-Nr., bei der anderen ist eine LED vorhanden, die wird den N brauchen).
Einen Schaltungsvorschlag für die Version ohne Rückführung habe ich mal beigefügt, käme halt auf einen Versuch an, wie groß die Temperaturschwankungen wirklich sind.
Besser ist aber auf jeden Fall, auf Nachbesserung (=Austausch der Leitung) zu bestehen. Wenn du noch nicht (alles) beim Ausführenden bezahlt hast, würde ich auf jeden Fall einen Teil des Geldes bis zur Klärung einbehalten, das wirkt meisten am allerbesten.
Viel Erfolg
PWK
|
BID = 131925
hobbydueser Gerade angekommen
Beiträge: 11
|
Hallo zusammen,
Ihr habt definitiv recht. Da hat da jemand murks gemacht. Das Problem ist jedoch, es ist nach Stundenlohn gezahlt und durch die Heirat meines Bruders ist da auch noch entfernte Verwandschaft dazugekommen (hätte er doch wenigstens gewartet bis mein Bau zu Ende ist). Er kann doch kein neues Kabel mehr einziehen. Es ist schon alles tapeziert usw.
Ich werde heute bis zum Feierabend Ideen von Euch sammeln und mich heute sofort daran begeben.
sam2 und pwk20 ich möchte nachher (ca. zw. 17 Uhr) auf ein Zettel was aufmalen und hier hochladen (ich habe Digitalfoto dabei). Damit Ihr sieht wie ich was verbinden möchte. Könnt Ihr bitte drüberschauen. Wichtig auch evtl paar Tips, wie ich heute testen kann ob es ok ist. Muss ich am Stellmotor 220 V messen, wenn der Thermostat aktiv ist usw.
Bis nachher und vielen dank an alle. Sendet bitte weitere Tips was ich heute alles versuchen kann.
Gruss
hobbydueser
|
BID = 132037
hobbydueser Gerade angekommen
Beiträge: 11
|
Hallo zusammen,
Fazit der bisherigen Antworten.
Es sind definitiv Adern zu wenig, da wirklich Berker darauf hinweist, dass der Regler nicht richtig arbeiten kann ohne N. Weiss jemand was das heissen kann? Ist das Thermostat wirklich dann unbrauchbar? Was kann ich tun? Kabel austauschen geht nicht mehr?
Ich werde jetzt das Schaltbild von pwk20 realisieren. D.h. Heizen Symbol Thermostat mit L vom Stellmotor verbinden.
Ich schreibe Euch ob es geklappt hat.
Gruss
hobbydueser
|
BID = 132065
pwk20 Stammposter
    Beiträge: 203
|
Wie schon erwähnt wird der N bei dem einen Typ von Thermostat nur für die thermische Rückführung benötigt.
Durch die thermische Rückführung wird der Thermostat um einiges genauer, d.h. die Hysterese zwischen Ein- und Ausschaltpunkt des Thermostaten wird verkleinert.
Beispiel:
Du stellst am Thermostaten 20° C ein, dann wird mit th. Rückführung (N angeschlossen) bei ca. 19,5° der Stellmotor geöffnet und bei ca. 20,5° wieder geschlossen. Die Raumtemperatur bleibt also ziemlich konstant.
Ohne die Rückführung schaltet dann der Thermostat aber in viel größeren Abständen, z.B. Heizung ein bei 18° und aus bei 22°. Du erhälst hierdurch halt nur wesentlich größere Temperaturschwankungen.
Ohne die Leitung zu tauschen hast du keine (VDE konforme) Möglichkeit den Thermostaten ordentlich zum laufen zu bringen.
Du kannst nur durch den Austausch der Komponenten etwas erreichen, entweder du suchst einen Thermostaten, der ohne Rückführung einwandfrei arbeitet oder man strebt eine ganz andere Lösung an.
Mir würde da eine Lösung mit einem Temperaturfühler (z.B. PT100) anstelle des Thermostaten einfallen, d.h. du baust im Raum einen Fühler, der mit den vorhandenen Adern zum FBH-Kasten verkabelt wird. Hier kannst du dann einen Thermostaten unterbringen, der die Heizung regelt.
Nachteil: du musst die Temperatur am FBH-Kasten einstellen und eine 2-Draht-Verbindung mit PT 100 ist nicht ganz unkritisch wegen der Genauigkeit.
mfg
[ Diese Nachricht wurde geändert von: pwk20 am 24 Nov 2004 19:21 ]
|
BID = 132236
hobbydueser Gerade angekommen
Beiträge: 11
|
Guten morgen zusammen,
(schön, weiss ich nicht, jedoch auf jeden Fall ein warmer dank Euren Tips und Hinweisen). Die FBH geht wieder, zumindest in 2 Räumen. Im Wohnzimmer sind 2 Heizkreise, kann sein, dass es da etwas träger ist. Ich werde das heute nach Feierabend mal prüfen. Dort habe ich einfach 2 Stellmotoren geschaltet. Der Unterschied, dass es 2 unterschiedliche sind, zum einen Cronatherm und der andere von NOVADRIVE mit so einem Knopf oben drauf, der sich aber nicht eindrücken lässt.
Vielen Dank nochmal an Euch alle. Der Notstand ist erstmal gelöst, die Familie ist im warmen. Ich werde dennoch, jetzt untersuchen, wie sich die Thermostate ohne N auswirken und anschl. Konsequenzen ziehen.
Gruss
hobbydueser
|
BID = 132252
pwk20 Stammposter
    Beiträge: 203
|
Schön dass es erst mal wieder warm ist...
Nur für den Fall, dass es nicht so richtif funktionieren sollte, hab ich meine Idee von gestern mal etwas weiter gesponnen:
Die Firma ECOM bietet PT-100-Fühler im Berker-Gehäuse an, was dir villeicht weiterhelfen könnte.
http://www.fuehlersysteme.de/cproduct.php?num=452
Kombiniert mit einem Auswertegerät im FB-Kasten wäre eine sehr genaue Temperaturregelung möglich. Als Auswertegerät könntest du z.B. das JUMO di32 nehmen (http://www.jumo.de).
HAbe mal einen Plan erstellt, der auf diesen beiden Komponenten aufbaut, vielleicht denkst du mal drüber nach.
Wäre trotzdem noch schön zu hören, ob es jetzt zufriedenstellen läuft oder nicht.
|
BID = 132795
hobbydueser Gerade angekommen
Beiträge: 11
|
Hallo zusammen,
wie versprochen neueste Statusinfos.
Die FBH funktioniert in allen Zimmern.
Halten wir fest, ja es fehlt definitiv eine Ader, damit das ordnungsgemäß funktioniert, es ist somit min. 4*1,5 Kabel notwendig für die Raumthermostate.
Da Ihr wirklich tolle Arbeit geleistet habt, habe ich mir was einfallen lassen und habe die Firma Berker kontaktiert, um rauszubekommen, was der Hinweis nun im Detail bedeutet, dass der Raumthermostat ohne N nicht ordnungsgemäß funktionieren kann.
Aussage Berker:
Das Problem wird sich im oberen thermischen Bereich bemerkbar machen, d.h. z.B. Wir stellen 20 C ein. Um Energieeffezienz zu erzielen, wird dem Thermostat nach Erreichen der 2o C sofort vorgegaukelt, es ist genug, Du kannst abschalten. Diese Technik benötigt halt 220 Volt (also L und N), bei mir ist es also so, dass er auf den Bimetall reagiert, der z.B. erst bei 23 C abschaltet, also ungenauer arbeitet. Im unteren Bereich, d.h. dass er umgekehrt erst bei 17 C einschaltet, anstatt 20 C, kann lt. Berker nicht auftreten.
Ich wünsche allen ein schönes Wochenende.
Gruss
hobbydueser
|
|
Zum Ersatzteileshop
Bezeichnungen von Produkten, Abbildungen und Logos , die in diesem Forum oder im Shop verwendet werden, sind Eigentum des entsprechenden Herstellers oder Besitzers. Diese dienen lediglich zur Identifikation!
Impressum
Datenschutz
Copyright © Baldur Brock Fernsehtechnik und Versand Ersatzteile in Heilbronn Deutschland
gerechnet auf die letzten 30 Tage haben wir 17 Beiträge im Durchschnitt pro Tag heute wurden bisher 6 Beiträge verfasst © x sparkkelsputz Besucher : 187990319 Heute : 9546 Gestern : 11123 Online : 368 28.12.2025 15:10 21 Besucher in den letzten 60 Sekunden alle 2.86 Sekunden ein neuer Besucher ---- logout ----viewtopic ---- logout ----
|
xcvb
ycvb
0.0477092266083
|