| Autor |
|
|
|
BID = 462063
Deniz Gelegenheitsposter
 
Beiträge: 66 Wohnort: Duisburg
|
|
Hallo,
meine Frage geht an Schaltschrank Experten!!
Hab da ein Problemchen!!
Und zwar bekommt der 30KW Ventilator eine Schalldämmkabine mit einem Abluftlüfter. 230V, 90W, 1PH, 0,7A
Das Problem ist, das ist in dem Schaltschrank nicht vorgesehen. Nun muss ich den Lüfter so integrieren, das der nur im Betrieb läuft (30 KW Ventilator).
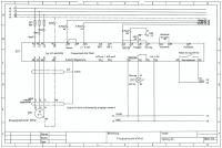
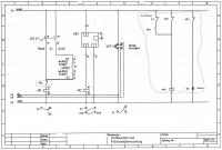
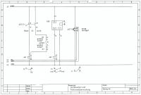
Habe da mal die Schaltpläne eingescannt.
Danke für eure Hilfe!!
Gruß
Deniz |
|
BID = 462064
Deniz Gelegenheitsposter
 
Beiträge: 66 Wohnort: Duisburg
|
|
<font color="#FF0000"><br><br>Das Dateiformat *.bmp ist nicht erlaubt ! Denken Sie bitte an den Traffic ! Deswegen nicht hochgeladen<br></font>
[ Diese Nachricht wurde geändert von: Deniz am 5 Okt 2007 18:11 ] |
|
BID = 462066
Deniz Gelegenheitsposter
 
Beiträge: 66 Wohnort: Duisburg
|
|
BID = 462067
Deniz Gelegenheitsposter
 
Beiträge: 66 Wohnort: Duisburg
|
Achja bevor ich es noch vergesse!!
schaltet der eingebaute Füllstandsmelder den 30KW Ventilator ab??
Danke
Deniz
|
BID = 462096
[cxt]Phil Stammposter
   
Beiträge: 471
|
So wie ich den Schaltplan verstanden habe gibt 4K2 den Umrichter frei, zbw. Schaltet den Motor ein. Hier könnte man nen weiteren Schließer verwenden um den Abluftlüfter zu schalten.
Philipp
|
BID = 462102
Deniz Gelegenheitsposter
 
Beiträge: 66 Wohnort: Duisburg
|
Danke dir für die schnelle antwort!! 4K2 soll ja die Freigabe für den Ventilator sein. 4K2 wird durch den Füllstandsmelder geschaltet und dadurch die Freigabe für den Ventilator gegeben. war mir nicht so sicher. Also könnte ich über einen "Öffner" kontakt von 4K2 die Zuleitung für den Ventilator in der Schalldämmkabine herholen?!?
Gruß
Deniz
|
BID = 462107
[cxt]Phil Stammposter
   
Beiträge: 471
|
Du brauchst nen "Schließer" Kontakt, über diesen wir dann der Außenleiter des Abluftlüfters geschalten.
|
BID = 462108
Deniz Gelegenheitsposter
 
Beiträge: 66 Wohnort: Duisburg
|
sorry meinte ich!! Da das Schütz angezogen ist
Danke!!
|
BID = 462111
123abc Schreibmaschine
    
Beiträge: 2216 Wohnort: Hamburg
|
Entweder das 4K2 um einen Kontakt erweitern oder zwischen den Klemmen 55 und 18 vom Umrichter ein 24V Relais hängen und dessen Kontakte benutzen.
123abc
|
BID = 462112
Deniz Gelegenheitsposter
 
Beiträge: 66 Wohnort: Duisburg
|
hmmm.... mir fällt da aber noch was ein!! Sobald der Füllstandsmelder wieder Frei wird zieht das Schütz 4K2 wieder an und der Ventilator läuft. Wie könnte ich da eine Verriegelung reinbekommen?? Das der nicht sofort anläuft??
|
BID = 462128
Deniz Gelegenheitsposter
 
Beiträge: 66 Wohnort: Duisburg
|
so müsste es doch klappen oder??
Würde da einen zweiten Schütz (Relais) einbauen. Worüber die Selbsthaltung stattfindet und über die Lampe H3 signalisiert wird. Durch die Taste S3 kann man den Füllstandsmelder Reseten.
Für Infos wäre ich Dankbar!!!
Gruß
Deniz
|
BID = 462130
Tobi P. Schreibmaschine
    
Beiträge: 2163 Wohnort: 41464 Neuss
|
Wenn der Ablüfter verzögert anlaufen soll, brauchst du ein Relais mit Anzugsverzögerung, z.b. ein Multifunktionsrelais.
Gruß Tobi
_________________
"Auch wenn einige Unwissende etwas anderes behaupten, bin ich doch der Meinung, dass man nie genug Werkzeug haben kann"
|
BID = 462131
Deniz Gelegenheitsposter
 
Beiträge: 66 Wohnort: Duisburg
|
nein braucht er nicht! Hauptsache der läuft solange der Hauptmotor (ventilator)läuft.
|
BID = 462133
Tobi P. Schreibmaschine
    
Beiträge: 2163 Wohnort: 41464 Neuss
|
Dann habe ich dich wohl falsch verstanden, ich bezog mich darauf:
Zitat :
|
Wie könnte ich da eine Verriegelung reinbekommen?? Das der nicht sofort anläuft??
|
Gruß Tobi
_________________
"Auch wenn einige Unwissende etwas anderes behaupten, bin ich doch der Meinung, dass man nie genug Werkzeug haben kann"
|
BID = 462135
Deniz Gelegenheitsposter
 
Beiträge: 66 Wohnort: Duisburg
|
ich meinte damit eine verriegelung für den Füllstandsmelder. Der Schütz 4K2 vom Füllstandsmelder ist im Ruhezustand angezogen. Sobald der abfällt ist die Freigabe weg. Das Problem ist: Mit dem Füllstandsmelder wird ein Sammelbehälter überwacht. Wenn der Voll ist und entnommen wird, ist der Füllstandsmelder wieder Frei (Also angezogen) dann ist auch die Freigabe wieder da.
Meine Frage war: Wie kann ich das Verhindern?
|