| Autor |
|
|
|
BID = 908450
songi Gerade angekommen
Beiträge: 5
|
|
Hallo Leute!
Bin neu hier im forum und bezüglich notstrom habe ich nur tipps für die automatische umschaltung gefunden.
Zum meinem Thema
Habe ein Notstromaggregat 12kw maximalleistung und will das bei eventuellem stromausfall zur hausversorgung nutzen.
Meine Frage nun, wie könnte ich so eine manuelle umschaltung mit schütz realisieren?
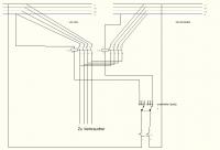
Keine Angst! Ich hab mir auch schon selber meine gedanken gemacht und mal ein bild von meinem schaltplan angehängt, wie ich mir das vorstelle bzw. ob es denn so funktioniert und auch laut VDE (österreichische normen) zulässig wäre.
Vielen Dank schon mal im voraus
mfg thomas
[ Diese Nachricht wurde geändert von: songi am 7 Dez 2013 17:42 ]
[ Diese Nachricht wurde geändert von: songi am 7 Dez 2013 17:43 ]
[ Diese Nachricht wurde geändert von: songi am 7 Dez 2013 17:45 ] |
|
BID = 908452
der mit den kurzen Armen Urgestein
     
Beiträge: 17437
|
|
Bei 12 kW reicht ein Handschalter mit Schaltfolge Netz Aus Notstrom.
Die Umschaltung muss immer über Netztrennung erfolgen . Es darf nie passieren das Dein Generator auf das Netz zugeschaltet werden kann.
Edit Deine "Schaltung" ist so nicht zugelassen!
_________________
Tippfehler sind vom Umtausch ausgeschlossen.
Arbeiten an Verteilern gehören in fachkundige Hände!
Sei Dir immer bewusst, dass von Deiner Arbeit das Leben und die Gesundheit anderer abhängen!
[ Diese Nachricht wurde geändert von: der mit den kurzen Armen am 7 Dez 2013 17:50 ] |
|
BID = 908453
songi Gerade angekommen
Beiträge: 5
|
Zitat :
der mit den kurzen Armen hat am 7 Dez 2013 17:47 geschrieben :
|
Bei 12 kW reicht ein Handschalter mit Schaltfolge Netz Aus Notstrom.
Die Umschaltung muss immer über Netztrennung erfolgen . Es darf nie passieren das Dein Generator auf das Netz zugeschaltet werden kann.
Edit Deine "Schaltung" ist so nicht zugelassen!
[ Diese Nachricht wurde geändert von: der mit den kurzen Armen am 7 Dez 2013 17:50 ]
|
Das hab ich mir fast gedacht! Ich bin eben einer der manchmal zu komplitziert denkt.
|
BID = 908456
TF_tronikfan Stammposter
   
Beiträge: 372 Wohnort: Stuttgart
|
Hallo Songi,
du musst "nur" den Schutz einhalten.
also alles was du zum Personen- und Brandschutz im normalen Netz vorgesehen hattest (Kuzschlussströme Schleifenwiderstand usw. usf) muss auch im "Notnetz" funktionieren oder durch andere Schutzmaßnahme(n) ersetzt werden. Sicher getrennte Umschaltung wurde schon erwähnt und die "Erdergeschichte" und/oder Potentialausgleich sollte geklärt werden.
Viel Spaß bei der Erstellung weiterer bzw. ausführlicherer Zeichnungen und der Berechnung des dann veränderten Netzes (das du damit ja aufbaust)
Gruß
tf
|
BID = 908457
der mit den kurzen Armen Urgestein
     
Beiträge: 17437
|
Nur als Hinweis der Generator wird nie die Kurzschlusströme aufbringen können das die LS wegen Kurzschluss auslösen. Den Überlastschutz könnte ein Motorschutzschalter sicherstellen.
_________________
Tippfehler sind vom Umtausch ausgeschlossen.
Arbeiten an Verteilern gehören in fachkundige Hände!
Sei Dir immer bewusst, dass von Deiner Arbeit das Leben und die Gesundheit anderer abhängen!
|
BID = 908462
songi Gerade angekommen
Beiträge: 5
|
Zitat :
TF_tronikfan hat am 7 Dez 2013 18:02 geschrieben :
|
Hallo Songi,
du musst "nur" den Schutz einhalten.
also alles was du zum Personen- und Brandschutz im normalen Netz vorgesehen hattest (Kuzschlussströme Schleifenwiderstand usw. usf) muss auch im "Notnetz" funktionieren oder durch andere Schutzmaßnahme(n) ersetzt werden. Sicher getrennte Umschaltung wurde schon erwähnt und die "Erdergeschichte" und/oder Potentialausgleich sollte geklärt werden.
Viel Spaß bei der Erstellung weiterer bzw. ausführlicherer Zeichnungen und der Berechnung des dann veränderten Netzes (das du damit ja aufbaust)
Gruß
tf
|
Unser haus ist noch etwas ältere generation ohne FI und mit klassischer nullung! Somit ist das mit der Erdergeschichte so ne sache.
Ich werd eher doch einen 63A umschalter verbauen!
Aber nur der neugierde halber, würde die schaltung so funktionieren denk ich, weil sich generator und netz ja nicht begegnen, da die schütz immer abwechselnd anziehen und nie gleichzeitig.
mfg thomas
[ Diese Nachricht wurde geändert von: songi am 7 Dez 2013 18:43 ]
|
BID = 908463
der mit den kurzen Armen Urgestein
     
Beiträge: 17437
|
Nein die Schaltung darf so nicht aufgebaut werden. Weil eben doch beide Schütze im Fehlerfall gezogen sein können . Dazu kommt noch das bei Generatorbetrieb eine allpolige Trennung vom Netz gefordert ist was den PEN bzw den N einschliest!
_________________
Tippfehler sind vom Umtausch ausgeschlossen.
Arbeiten an Verteilern gehören in fachkundige Hände!
Sei Dir immer bewusst, dass von Deiner Arbeit das Leben und die Gesundheit anderer abhängen!
|
BID = 908469
Sauwetter Verwarnt
|
Gurgelst Du mal nach w.w.it-usv.at, vielleicht findest Du was passendes o. zumindest was zum Schmökern.
_________________
Es gibt nichts praktischeres, als eine gute Theorie.
|
BID = 908472
songi Gerade angekommen
Beiträge: 5
|
Ok dann verwerf ich das mit der schützschaltung und machs jetzt
endgültig mit einem umschalter.
danke für eure antworten
mfg thomas
|
BID = 908475
Lightyear Inventar
     
Beiträge: 7909 Wohnort: Nürnberg
|
Klassische Nullung und Ersatzstromerzeuger verträgt sich gaaaaanz schlecht, um's mal sehr vorsichtig auszudrücken...
_________________
Gruß aus Nürnberg,
Lightyear
Alles unter 1000°C ist HANDWARM!
Alle Tipps ohne jegliche Gewähr, die Einhaltung aller Vorschriften obliegt dem Ausführenden!
|
BID = 908481
powersupply Schreibmaschine
    
Beiträge: 2920 Wohnort: Schwobaländle
|
Zum Verhindern, dass im Fehlerfall beide Schütze gleichzeitig angezogen sind liese sich noch ein evtl vorhandener Öffnerkontakt als Kontaktverriegelung in die Steuerleitung des jeweils anderen Schütz einschleifen.
_________________
powersupply
Es gibt 10 Arten von Menschen. Solche die Binärtechnik verstehen und die anderen.
|
BID = 908492
Elektro Freak Inventar
     
Beiträge: 3470 Wohnort: Mutter Erde
|
Zitat :
Lightyear hat am 7 Dez 2013 19:40 geschrieben :
|
Klassische Nullung und Ersatzstromerzeuger verträgt sich gaaaaanz schlecht, um's mal sehr vorsichtig auszudrücken...
|
Was spricht dagegen den Generatorsternpunkt zu Erden und somit einen PEN ab Generator zu Erzeugen ?
Einspeisung dürfte halt nicht über einen Stecker erfolgen sondern fest ..
_________________
|
BID = 908496
Topf_Gun Schreibmaschine
    
Beiträge: 1236
|
Der PEN darf nicht geschalten werden. Das macht ein Allpoliges Umschalten schwer.
Außerdem darf, IIRC, das Netz nicht als Erder Verwendet werden.
Schaltverbot für den PEN heist, das dein Sternpunkt des Generators IMMER mit dem PEN des Netzes verbunden ist.
PEN heist auch, Schutz vor indirektem Berühren erfolgt durch Überstromabschaltung. Dabei ist Anzuzweifeln, das der Notstromer es schafft, einen B10 oder größer sicher in Schnellzeit auszulösen.
topf_Gun
_________________
Die Sonne, sieh, geht auf und nieder,
täglich weicht die Nacht dem Licht,
alles sieht man einmal wieder,
nur verborgtes Werkzeug nicht!
|
BID = 908497
Elektro Freak Inventar
     
Beiträge: 3470 Wohnort: Mutter Erde
|
Naja ich bin davon ausgegangen :
- PEN vom Netz/UV ist an der PA Schiene angeschlossen
- Der Sternpunkt des Generators auch
Somit wäre der Generator N bis nach dem Umschalter und dem Erdungspunkt nur ein N und dürfte geschalten werden.
Nominativ evtl. ein Problem in der Praxis sehe ich keines, da das Netz und der Generator so bestens Geerdet wäre.
Und ich denke mal im Kurzschlussfall würde sich der Generator einfach abwürgen, das muss man testen und mal die Schleife messen.
Im Zweifel halt direkt am Generator z. B. ein Z-LSS (Kurzschlussauslöser ähnlich H, Überlast wie bei B).
_________________
|
BID = 908498
Topf_Gun Schreibmaschine
    
Beiträge: 1236
|
Für ein TN-C-S fürs Netz und TN-S ab Generator mag es gehen, siehe Bild. ich bin mir aber nicht sicher, ob das so zulässig ist.
Ich würde wahrscheinlich auf TT im Netzbetrieb gehen und TN-S Im Notstromfall. Dann habe ich bei Notstrombetrieb absolut keinen Kontakt zum Netz.
Aber was machst Du mit Verbrauchern in TN-C Kreisen?
entweder fliest Betriebsstrom über die HPA oder Du Schaltest einen PEN!
Zeichne es mal auf.
Topf_Gun
_________________
Die Sonne, sieh, geht auf und nieder,
täglich weicht die Nacht dem Licht,
alles sieht man einmal wieder,
nur verborgtes Werkzeug nicht!
|