Neuer Transformator!

Im Unterforum Elektroinstallation - Beschreibung: Alles über Installation
Achtung immer VDE beachten !!

Elektronik Forum Nicht eingeloggt       Einloggen       Registrieren




[Registrieren]      --     [FAQ]      --     [ Einen Link auf Ihrer Homepage zum Forum]      --     [ Themen kostenlos per RSS in ihre Homepage einbauen]      --     [Einloggen]

Suchen


Serverzeit: 27 12 2025  23:52:25      TV   VCR Aufnahme   TFT   CRT-Monitor   Netzteile   LED-FAQ   Oszilloskop-Schirmbilder            


Elektronik- und Elektroforum Forum Index   >>   Elektroinstallation        Elektroinstallation : Alles über Installation
Achtung immer VDE beachten !!


Autor
Neuer Transformator!
Suche nach: transformator (1311)

    







BID = 468999

wolf_reich

Gerade angekommen


Beiträge: 8
Wohnort: Wiener Neudorf
 

  


Hallo liebes Forum,

mein Problem ist, dass ich nicht weiß ob es klug ist in der vorliegenden Situation einen elektronischen Trafo zu verwenden! Daher beschreibe ich euch mal kurz die Situation und hoffe ihr könnt mir dann hilfreiche Tipps geben.

Also der Trafo muss ausgewechselt werden, da es aufgrund von anderen Problemen zu einem Kurzschluß sekundär gekommen ist und die Primärseite des Trafos durchgebrannt ist.

Jetzt stellt sich mir die Frage, ob es besser ist einen elektrischen oder konventionellen Trafo zu verbauen.

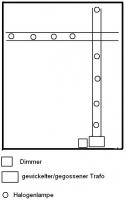
Die Situation hab ich versucht in der folgenden Grafik darzustellen. Es ist ein Dimmerschalter, mit anschließend 9 Halogenlampen á 20Watt die im ganzen Raum verteilt sind. Das verbaute System ist so ein gespanntes Seilsystem.

So nun zu meinen konkreten Fragen worauf ich bei meiner Recherche im Internet gestoßen bin und großteils keine eindeutigen Antworten gefunden habe:
1.) darf man elektrische Trafos mit Seilsystemen verwenden
2.) sind elektrische Trafos für so große Leistungen verwendbar
3.) da die Raumabmessungen ungefähr 6x6m sind schafft das der elektrische Trafo (hab immer wieder was von Leitungslängen bis max.2m gelesen)
4.) da konventionelle Trafos die sinnvollen SIcherheitseinrichtungen nicht haben gibt es andere Möglichkeiten den Senkundärkreis gegen Kurzschluß zu sichern

So ich hoffe ihr könnt mit meinen Angaben etwas anfangen und mir hilfreiche Ratschläge geben. Auf jeden Fall will ich mich schon mal im vorhinein für eure Antworten danken!

mit freundlichen Grüßen
Wolfgang



BID = 469010

Fentanyl

Fentanyl mit Overkill
Volle Kanne !




Beiträge: 1912

 

  


Zitat :
1.) darf man elektrische Trafos mit Seilsystemen verwenden
Aber ja!


Zitat :
2.) sind elektrische Trafos für so große Leistungen verwendbar
Sofern du einen elektronischen Trafo mit dieser Leistung findest, ist er auch dafür verwendbar. Ich habe die Produktpalette nicht im Kopf, da ich eher konventionelle Trafos favorisiere!


Zitat :
3.) da die Raumabmessungen ungefähr 6x6m sind schafft das der elektrische Trafo (hab immer wieder was von Leitungslängen bis max.2m gelesen)
Zumindest geschirmte Leitung wäre sinnvoll und der Querschnitt muss stimmen, dann sollte es eigentlich schon gehen - warte aber mal ab, was andere, die auf dem Gebiet mehr Erfahrung haben, dazu sagen!


Zitat :
4.) da konventionelle Trafos die sinnvollen SIcherheitseinrichtungen nicht haben gibt es andere Möglichkeiten den Senkundärkreis gegen Kurzschluß zu sichern
Sekundär Schmelzsicherungen, Leitungsschutzschalter Charakteristik Z oder B. Zusätzlich kann man noch Varistoren einsetzen, um bei einem Fehler des Trafos sicher zu verhindern, dass das Seilsystem unter Netzspannung steht.

MfG; Fenta

BID = 469013

schweizer

Stammposter



Beiträge: 356
Wohnort: Schweiz

Bei der Wahl des Trafo`s eher auf konventionelle Trafo`s zurückgreifen. Das heist bei dir ein Trafo.
Das Problem bei den elektronischen Trafos ist, dass sie in deiner Leistungsklasse, die du brauchst, viel zu teuer sind!

Andere Frage: Wie oder durch was ist dann der alte Trafo "zerstört" worden?? Ursache gefunden?

_________________
Nie unter Spannung arbeiten.

Herr über 6x CAT 3516B HD
1x Sulzer BAF 22

BID = 469016

berufsbastler

Schriftsteller



Beiträge: 615

Ich gehe mal davon aus, dass es sich um ein 12V Halogenystem handelt.


Leistung wäre nicht das Problem, allerdings fließen bei diesen Systemen recht hohe Ströme. Am besten man Speist in der Mitte des Systems ein, damit alle Lampen gleich hell leuchten und nicht die letzte durch den Spannungsfall deutlich weniger.

Beim Dimmer ist drauf zu achten, ob der es mit elektronischen Trafos kann.

Grundsätzlich ist ein elektronischer schon leicht und klein, allerdings hat er eine deutlich geringere Lebensdauer.
Ein normaler 50Hz-Trafo hält meistens ewig, solange er nicht überlastet wird, ein elektronischer geht schon mal öfter kaputt.

Auch der 50Hz-Trafo hat in der Regel einen Überlastschutz drin. Wenn er zu heiß wird schaltet er sich erst mal ab.

BID = 469017

wolf_reich

Gerade angekommen


Beiträge: 8
Wohnort: Wiener Neudorf

Hallo an alle,

erstmal danke für eure Antworten.

@Fenta
Darf ich fragen warum dir konventionelle Trafos lieber sind?
und
was hälst du persönlich von elektronischen Trafos?

@schweizer
genau das war eben meine Sorge!
Der alte Trafo ist gestorben, da ein Professorium zu lange verwendet wurde und irgendwann mal plötzlich 230V auf die Leitung gekommen sind.

@berufsbaslter
ja sorry die Information für Halogensystem ist eigentlichnur in der Zeichnung versteckt

ja das mit der Einspeisung ist relativ schwierig jetzt im nachhinein weil die Drähte und alles weitere schon verlegt sind und ich den alten Trafo jetzt eigentlich nur sinnvoll ersetzen wollte

das mit dem Dimmer war meine nächste Sorge und hatte ihn schon ausgebaut nur keine sinnvollen relavanten Daten außer die Artikelnr. und den Hersteller darauf gefunden.

Das wegen der Baugröße&Gewicht ist an dieser Stelle sowieso egal da vorher sowieso auch ein riesiger Trafo montiert war und direkt darunter sowieso auch die Glocke montiert ist.

passt das mit den SIcherheitsystemen werd ich mir mal durch den Kopf gehen lassen und kann ich ja anschließend noch immer montieren!

So jetzt zum Schluß möchte ich mich noch für meinen Schreibfehler im vorhergehenden Beitrag entschuldigen elektronisch -> elektrisch und würde eure Beiträge gerne so zusammenfassen was ich für einen Eindruck aus euren Antworten gewonnen habe.

Also elektronische Trafos haben dann Sinn wenn es klein ohne viel Gewicht und vorallem ohne große Wärmeentstehung passieren soll. Die zusätzlichen Sicherheitssysteme und vorhergehenden Vorteile werden dadurch relativiert, dass der Trafo häufiger kaputt wird.
Daher empfiehlt es sich einmal in einen teureren konventionellen Trafo zu investieren der ewig lebt solange keine externen Einwirkungen kommen die ihn zerstören.

Nun zum Abschluß welchen Trafo (Leistung) würdet ihr für die 9x20W kaufen?

vielen Dank und mit freundlichen Grüßen
Wolfgang

BID = 469018

wolf_reich

Gerade angekommen


Beiträge: 8
Wohnort: Wiener Neudorf

@berfusbastler

außerdem hat sich mein Freund bis jetzt auch nicht über die Helligkeit beschwert und ich hoffe, dass das beim neuen Trafo auch nicht passieren wird.

mfg wolfgang

BID = 469029

Chris11

Stammposter



Beiträge: 465

Hallo,

Halogenseilsystem funktionieren aus mehreren Gründen nicht oder nur sehr schlecht mit elektronischen Trafos. Die meisten elektronischen Trafos erzeugen eine Rechteck-AC Ausgangspannung im Bereich 30-100Khz (typ. 40Khz). Sie sind was EMV Abstrahlung angeht nur mit normalen Zweidrahtleitungen (NYY etc) oder abgeschirmten Leitungen zu verwenden. Aber selbst wenn einem die EMV egal ist, ein Seilsystem hat eine hohe Induktivität wegen der großen Leiterschleife, daher werden von Trafo entfernte Leuchten (ab 1m) schon deutlich dunkler.

Mit freundlichem Gruß
Christian

BID = 469045

sam2

Urgestein



Beiträge: 35321
Wohnort: Franken (bairisch besetzte Zone)

Klarer Fall:
Für Deine Konstellation ist ein handelsüblicher elektronischer Trafo weder zulässig noch geeignet!

Und die Lebensdauer eines auch nur halbwegs guten konventionellen ist um Größenordnungen höher.
Wenn man Sekundär 230V anlegt, dürfte auch jeder elektronisdche Trafo sterben, vermutlich sogar viel eher als ein konventioneller...

_________________
"Das Gerät habe ich vor soundsoviel Jahren bei Ihnen gekauft! Immer ist es gegangen, immer. Aber seit gestern früh geht es plötzlich nicht mehr. Sagen Sie mal, DA STIMMT DOCH WAS NICHT???"

BID = 469078

mdick62

Gesprächig



Beiträge: 141
Wohnort: Deutschland

Nachdem mir bei meinem "Sternenhimmel" im Gäste-WC (6 x 10W Halogen-NV) nach 5 Jahren bereits der elektronische Trafo das zeitliche gesegnet hat, habe ich nun die Schnauze voll von diesen Dingern.

Ich geb zu, es war ein "Billig-Komplett-Paket" aus dem Baumarkt, aber für EUR 10,- bekomme ich sonst noch nicht mal die Fassungen mit den entsprechenden Stiftsockellampen

Dann schon lieber wie Fenta: Mit gewickelten Trafos (am Besten Ringkern) hat man was Solides in der Hand, was auch nicht so schnell kaputt geht.

Auf der anderen Seite muss der Trafo natürlich zu der Belastung passen, sonst brennen einem hoffnungslos die Lämpchen durch.




BID = 469134

Fentanyl

Fentanyl mit Overkill
Volle Kanne !




Beiträge: 1912

@wolf_reich: Ein guter konventioneller Trafo ist mir deshalb lieber:
- sichere Trennung zwischen Primärspule und Sekundärspule
- Unempfindlicher gegenüber Überspannungen
- Sekundär Angeschlossene Verbraucher sind besser vor Netz-Überspannungen geschützt (okay, das Problem hab ich dank ÜSS-Konzept eh nicht, aber erwähnenswert ist es dennoch)
- Höhere Leistungsklassen lieferbar
- man braucht keinen Phasenabschnittsdimmer, daher können auch Phasenanschnittsdimmer (übliche DMX-Dimmerpacks) zum Dimmen verwendet werden.
- Weniger elektronische Trafos und Schaltnetzteile bedeuten weniger Oberwellen im Netz!
- Wie die anderen schon sagten: konventionelle Trafos sind VIEL langlebiger
- Das Brandrisiko ist geringer, da der Kern einen Thermoschutz enthält und sich Überschläge weniger schwerwiegend auswirken, als beim elektronischen Trafo
- EMV-technisch vorteilhafter, da die Frequenz nur 50Hz beträgt, mit Dioden/Gleichrichter und Elko ist der Strom sogar komplett glättbar

Man muss aber auch einiges beachten:
- Gerade Trafos mit mehreren hundert Watt haben hohe Einschaltströme - ein Leitungsschutzschalter B10 reicht da evtl. nicht mehr. Statt auf B16 oder gar B20 auszuweichen, sollte man lieber einen C10, oder D6 nehmen, möglich ist auch ein Motorschutzschalter.

- Beim Ausschalten der Trafos bricht das Feld zusammen und es können hohe Spannungsspitzen in Primär- und Sekundärkreis entstehen. Während das ganze Primär bei Trafos unter 2-3 kW normalerweise keinen Schaden anrichtet, sieht das ganze im kleinspannungskreis schon anders aus, insbesondere bei Verwendung von LED-Lampen. mindestens ein Gasentladungsableiter und ein Varistor sind hier Pflicht, eine Durchbruch-Diode ist auch sinnvoll.

- Ein Konventioneller Trafo sollte zu mindestens 80% belastet werden, um eine Stabile Ausgangsspannung zu erzielen. Ist dies nicht gegeben, kann man z.B. Leistungsdioden in Reihe Schalten, um einen künstlichen Spannungsabfall zu erzeugen. Auch leistungswiderstände sind möglich,beides erzeugt Wärme. Für deine Anwendung käme ein 200W oder knapp noch ein 250W Trafo in Betracht.

MfG; Fenta

BID = 469139

wolf_reich

Gerade angekommen


Beiträge: 8
Wohnort: Wiener Neudorf

hallo!

Ich wollte mich bei euch allen bedanken. Ihr habt meine "Erfahrungen" was ich so im Netz gefunden habe jetzt eindeutig untermauert und meine Vermutungen mit handfesten Begründungen klargestellt!

Also ich bin jetzt zum Schluß gekommen mir einen konventionellen Trafo zu kaufen auch wenn er etwas teurer ist aber ich denke das Geld zahlt sich aus.

Bevor ich dieses Thema allerdings abschließe hätte ich noch eine letzte Frage:

Kann mir einer von euch eine gute Seite/Firma sagen, die Trafos mit einem guten Preisleistungsverhältnis verkauft oder soll ich zum Conrad gehen und irgendeinen nehmen??

mfg Wolfgang

BID = 469168

sam2

Urgestein



Beiträge: 35321
Wohnort: Franken (bairisch besetzte Zone)

Der Große Zeh ist bei solchen Sachen meist zu teuer.

Ich würde in der Bucht nachsehen. Konventionelle Trafos kann man ohne Bedenken gebraucht erwerben!

BID = 469221

Fentanyl

Fentanyl mit Overkill
Volle Kanne !




Beiträge: 1912

Ich hab für einen 12V/25A - Trafo beim C AFAIK mal 89 Euro bezahlt, was IMO noch nicht übermäßig aus dem Rahmen fällt. Aber natürlich kann man auch beim ih-bäh schauen

MfG, Fenta


Zurück zur Seite 0 im Unterforum          Vorheriges Thema Nächstes Thema 


Zum Ersatzteileshop


Bezeichnungen von Produkten, Abbildungen und Logos , die in diesem Forum oder im Shop verwendet werden, sind Eigentum des entsprechenden Herstellers oder Besitzers. Diese dienen lediglich zur Identifikation!
Impressum       Datenschutz       Copyright © Baldur Brock Fernsehtechnik und Versand Ersatzteile in Heilbronn Deutschland       

gerechnet auf die letzten 30 Tage haben wir 17 Beiträge im Durchschnitt pro Tag       heute wurden bisher 15 Beiträge verfasst
© x sparkkelsputz        Besucher : 187980757   Heute : 11073    Gestern : 28182    Online : 344        27.12.2025    23:52
4 Besucher in den letzten 60 Sekunden        alle 15.00 Sekunden ein neuer Besucher ---- logout ----viewtopic ---- logout ----
xcvb ycvb
0.0467908382416